Летний одноэтажный дом с кухней-гостиной и спальней
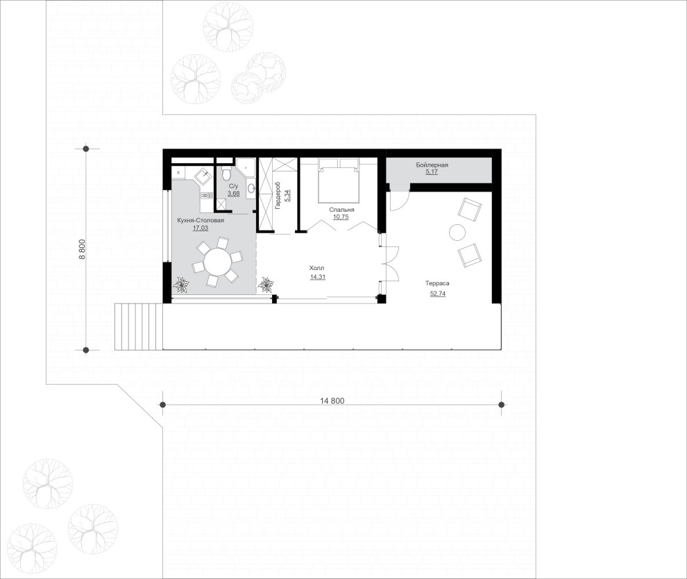
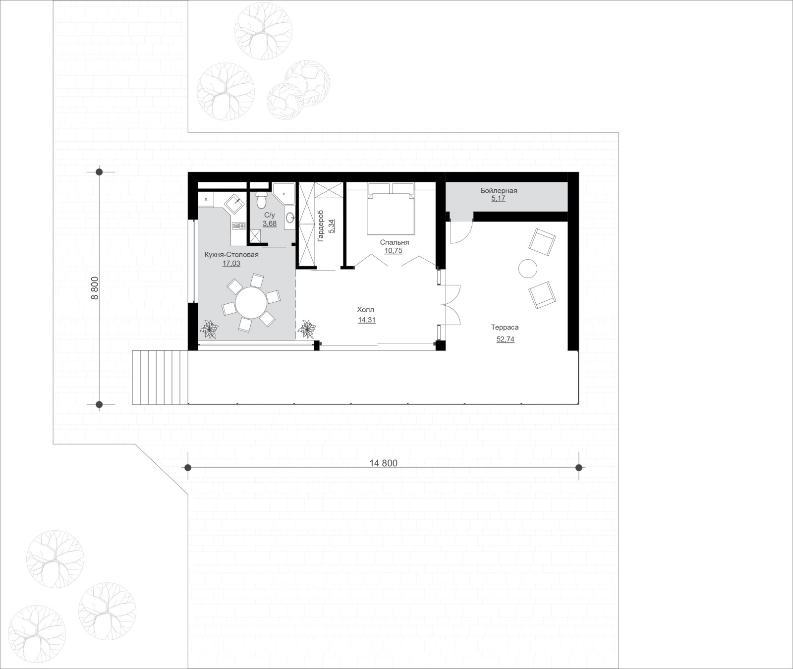
Одноэтажный дом с одной спальней.
Год реализации: 2022
Стоимость проектирования: 34 999 ₽
г. Тольятти
13 фотографий
Одноэтажный дом с одной спальней.
13 фотографий

Одноэтажный дом с двумя спальнями и кабинетом
Мебелировка спален
Зонирование и мебелировка студии 30 м2
Перепланировка двухкомнатной квартиры 54м2
Одноэтажный дом с двумя спальнями, кабинетом и кухней-гостиной
Двухэтажный дом с игровой, двумя кабинетами и тремя спальнями
Двухэтажный дуплекс площадью 180 м2