Лед и пламя
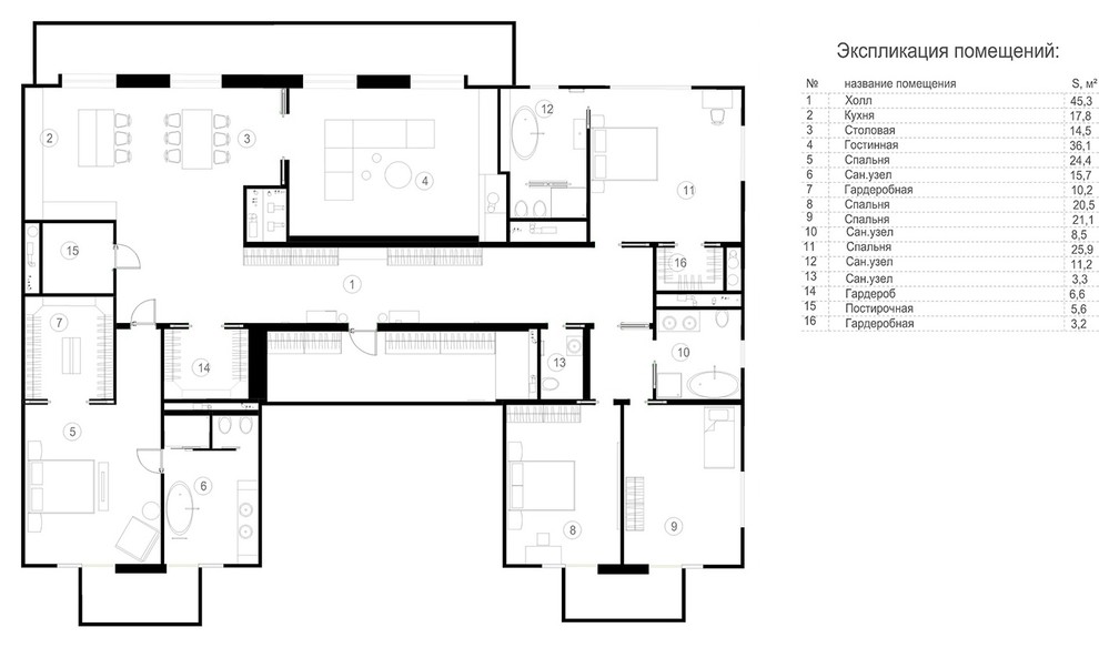
Проект жилого пространства, площадью 270 кв.м, для семьи из 5 человек (муж с женой и трое детей: мальчики в возрасте 3 и 15 лет и девочка – 18 лет). . Семья любит принимать у себя гостей, поэтому решено было организовать яркое и креативное пространство, которое подходило бы и для семейных посиделок у телевизора и для организации званного ужина и для домашней вечеринки.
Год реализации: 2015
Стоимость проектирования: 508 750 000 ₽
7 фотографий








