
Дизайнеры интерьера
0
Лед и пламя
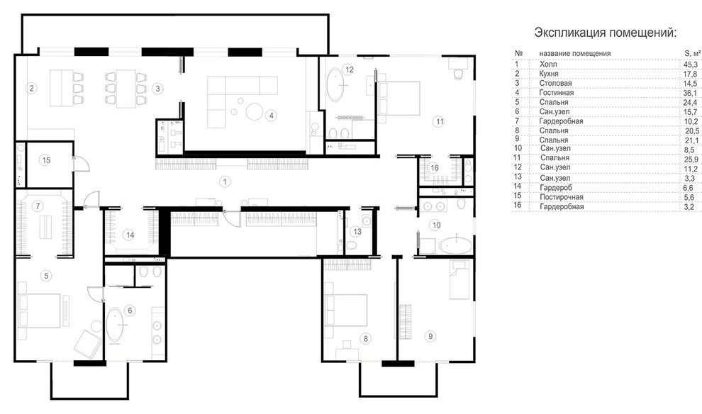
Проект жилого пространства, площадью 270 кв.м, для семьи из 5 человек (муж с женой и трое детей: мальчики в возрасте 3 и 15 лет и девочка – 18 лет). Задача была в разработке пространства с четырьмя отдельными спальнями: для родителей и для каждого ребенка. В спальне родителей и дочери необходимо было предусмотреть отдельные ванные и гардеробные комнаты со входом из спален, так же отдельный гостевой санузел недалеко от входной двери и отдельную ванную комнату для обоих мальчиков рядом с их комнатами. Еще одной важной задачей была организация мест хранения, в том числе габаритных вещей для занятия хоккеем, которым увлечен старший сын Заказчиков. Владельцам повезло приобрести обе квартиры, находящиеся на последнем этаже дома, что позволило им не только объединить пространство, но и использовать лифтовой холл в качестве дополнительного места для хранения. Семья любит принимать у себя гостей, поэтому решено было организовать яркое и креативное пространство, которое подходило бы и для семейных посиделок у телевизора и для организации званного ужина и для домашней вечеринки.
Другие фотографии в проекте
Вопросы к фото 0
Задайте вопрос
Вам ответят эксперты. Пришлем уведомление, когда вам ответят




