LARSFLAT - ДВУХКОМНАТНАЯ КВАРТИРА В ЖК "ЕВРОПЕЙСКИЙ БЕРЕГ"
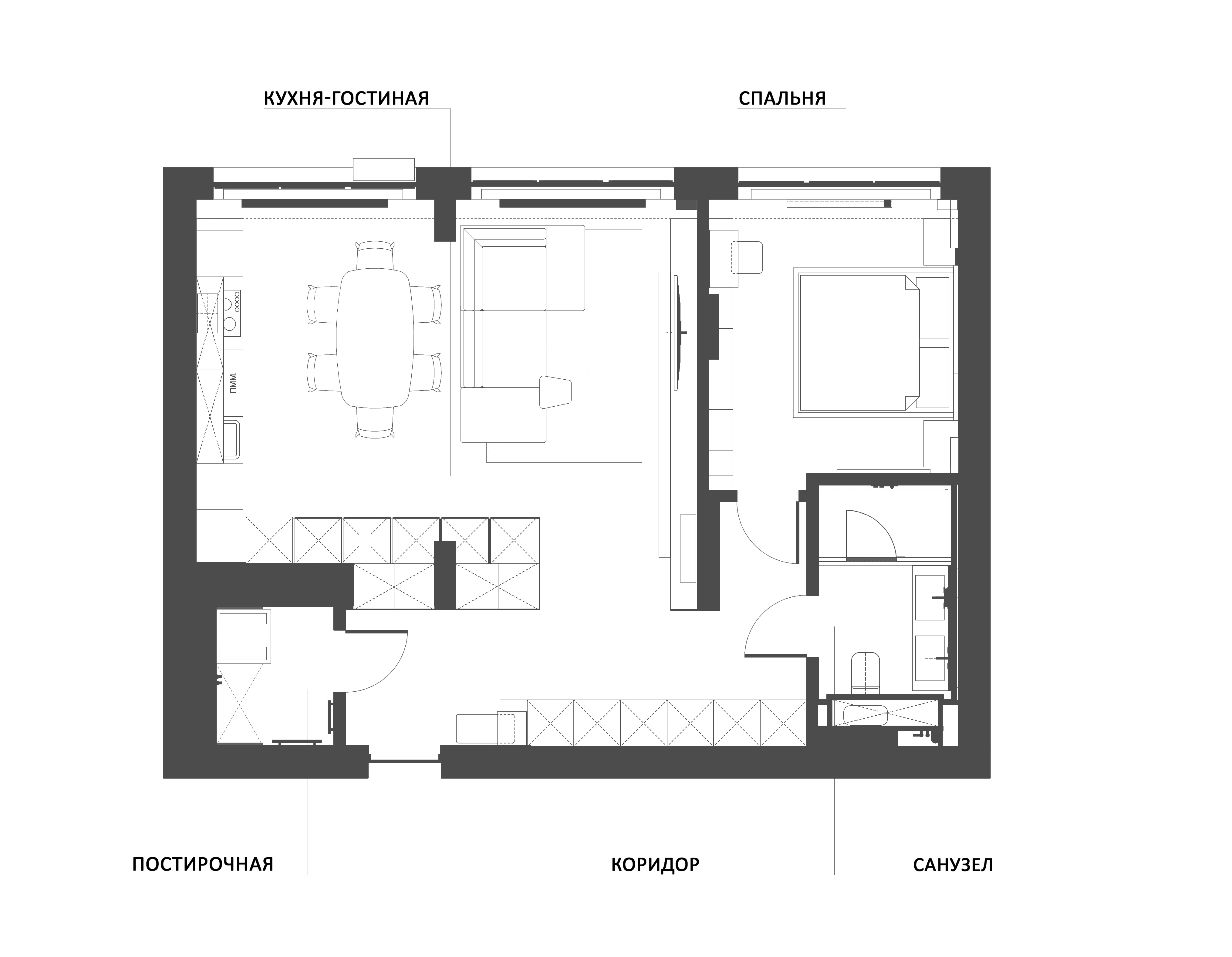
Это небольшая уютная квартира площадью в 64 кв. м. для семьи из двух человек находится в современном ЖК "Европейский берег" в городе Новосибирск. Заказчики - очень педантичные люди, и поэтому интерьер мы сделали чистый, светлый и лёгкий. Изначально мы получили квартиру с другой планировкой. Тут была отдельная кухня, отдельная гостиная. Мы убрали лишние перегородки, чтобы освободить пространство и тем самым получили единую кухню-гостиную, спальню , а также отдельный санузел и постирочную. Вход в кухню-гостиную мы передвинули вбок и как бы огородили прихожую за счет того , разместили гардеробный шкаф напротив входной двери. По левую сторону от входа , вот за этой зеркальной стеной , находится постирочная, которая вмещает в себя: стиральную, сушильную машину, а также различные полки для хранения. Ключевой объект гостиной зоны - это стеллаж, который мы сделали специально, чтобы объединить такие объёмы: как телевизор, систему хранения под телевизором и настенный блок кондиционера. По факту, все основные движения в интерьере крутятся вокруг одного деревянного объема. Начало он берёт в прихожей зоне в виде гардеробного шкафа, а после плавно перетекает в лаконичные кухонные фасады пеналов. Вход в кухню-гостиную мы немного сдвинули от начальной планировки, как бы огородив прихожую. За счет этого, мы разместили гардеробный шкаф напротив входной двери. По левую сторону от входа находится постирочная, которая вмещает в себя: стиральную, сушильную машину, а также различные полки для хранения. Спальню мы сделали абсолютно белую и монохромную. Это как раз таки тот яркий пример, о котором мы всегда говорим своим заказчикам - что белый цвет на стенах может быть уютным, стильным и комфортным. Санузел выполнен полностью в белых тонах. Он имеет душевую кабину, две раковины и один туалет. Акцентным в интерьере является плитка, которая выложена специально по нашим чертежам.
22 фотографии























