Квартира в ЖК "Воробьевы Горы" I
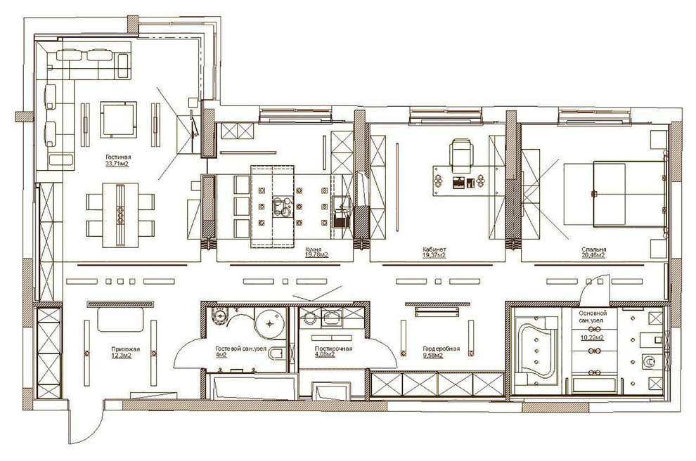
Квартира спроектирована по принципу классической анфилады с современными технологиями и материалами. С точки зрения открытости и закрытости пространства квартира - опенспейс, вытянутая в плане и разделенная на отдельные отсеки словно подводная лодка при помощи раздвижных перегородок с очень высокой степенью звукоизоляции.
Год реализации: 2007
Стоимость проектирования: 508 750 000 ₽
21 фотография





















