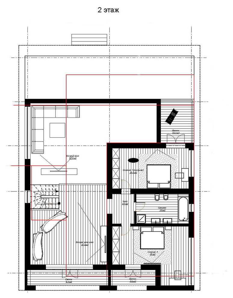
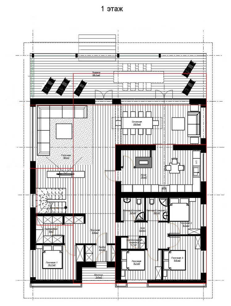
Проект дома в Тверской области
Задача реконструировать существующее здание дачи 250 м2 и превратить его в загородный дом для проживания семьи из трех человек и до 30 чел.гостей. . Демонтируется и перестраивается все, кроме основы дома - сруба пятистенка и печи, полностью перестраивается крыша, приобретающая аэродинамическую форму, что в совокупности с компактным планом обеспечивает пассивные методы повышения энергоэффетивности дома.
Год реализации: 2017
Стоимость проектирования: 12 250 000 ₽
9 фотографий










