Квартира в ЖК Новое Медведково
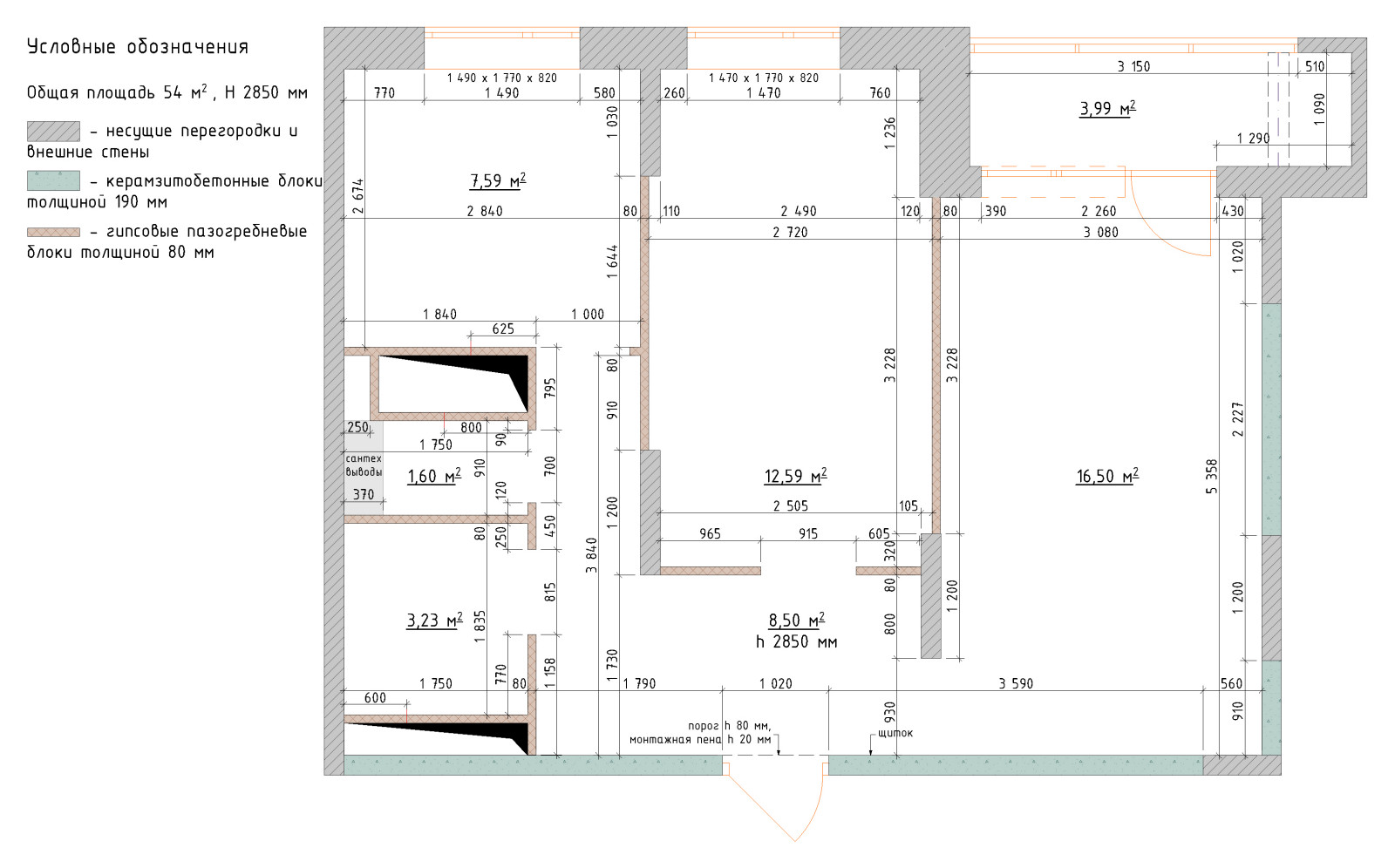
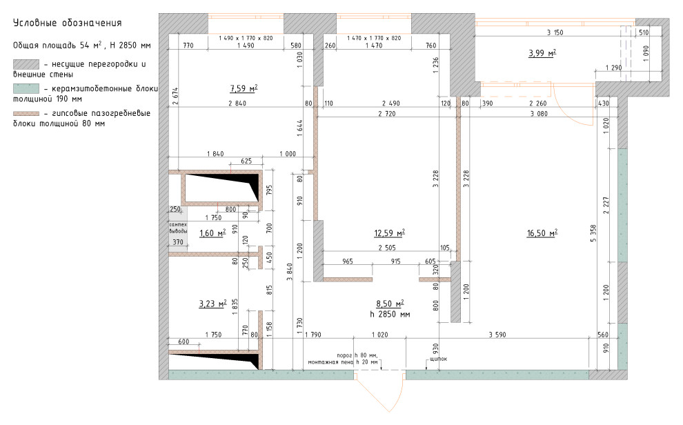
Двухкомнатная квартира 54 м кв. для дамы пенсионного возраста. . . Когда мы встретились с заказчицей проекта, её пожеланиями к будущему интерьеру были тёплые пастельные тона, интерьер в современном стиле. Хотелось получить интерьер наполненный домашним теплом и атмосферой. . . Тёплая цветовая гамма интерьера отлично подошла, в этом помогло расположение окон, они выходят на юго-западную сторону. В квартире светло и солнечно, особенно живописно интерьер выглядит на закате. . . Квартира получилась с необычной планировкой - двигаться по ней можно по кругу. Из прихожей можно попасть в гостиную, а можно через небольшой коридор пройти в кухню. Из кухни можно выйти в гостиную. . . Две раздвижные перегородки позволяют объединять пространство и дают больше света и ощущения воздуха. При желании их можно закрыть, отделив функциональные зоны, но не потеряв естественное освещение. . . В кухню ведёт коридор, он был в изначальной планировке застройщика. Нужно было решить как его визуально расширить. С этим помогли два зеркала на всю высоту стены и молдинги в цвет стен. Молдинги сгладили монотонность стен, а зеркала расширили пространство, добавили света и воздуха. . . Кухня изначально была небольшая, тем не менее это устраивало клиентку. Не смотря на небольшие объёмы кухни, удалость разместить всю необходимую технику. Были использованы пару нестандартных решений: посудомойка компактного размера высотой всего 45 см и выдвижной поддон в нише. . . В гостиной изначально планировали разместить рабочее место у окна, но в процессе ремонта передумали, поставили кресло для чтения и книжный шкаф. Однако розетки для рабочего стола остались, кто знает, возможно они пригодятся в будущем. . . Гостиная выполняет исключительно функцию отдыха и приёма гостей, проведения праздников. В ней осталось достаточно места, чтобы можно было поставить обеденный стол или ёлку на Новый год, провести время в кругу семьи. . . Спальня изолирована от других комнат. Это уютный уголок с мягкими панелями в изголовье и большим телевизором напротив кровати. . Если в гостиной яркими акцентами стали диван и тумба в винном оттенке, то в спальне был выбран спокойный голубой цвет в обивке кровати и изголовья. Особенно хорошо цвета спальни выглядят на закате в лучах солнца. Они позволяют легко расслабиться и отдохнуть. . . Из спальни через зеркальную дверь можно попасть в гардеробную. Основной объём вещей хранится там. Всё максимально закрыто и упорядочено, для каждой вещи в доме есть своё место. .
60 фотографий





























































