Квартира в Москве на улице Маршала Рыбалко
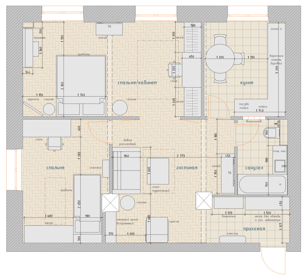
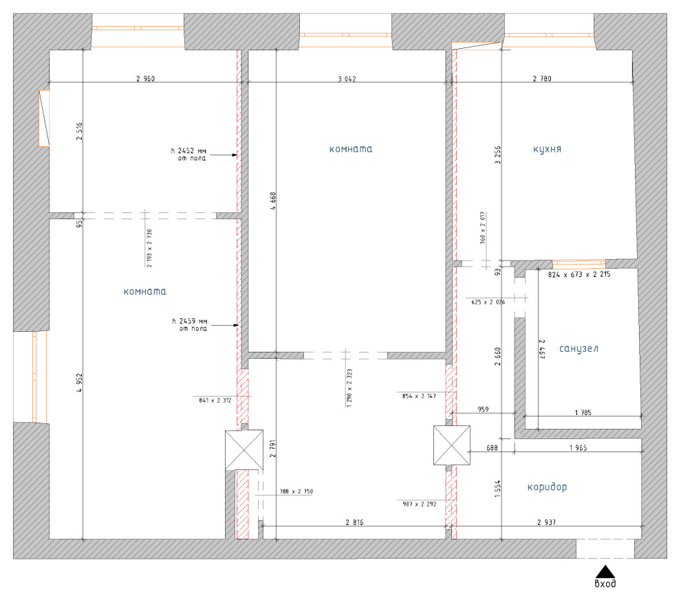
Проект квартиры для семьи с мальчиком подростком. Квартира находится в Москве в доме 1955 года постройки, серия I-410. . Основными пожеланиями было сохранить дух сталинки, сделать квартиру в светлых тёплых тонах, добавить винтажные предметы. . Также требовалось разместить рабочее место главы семьи, турник для утренней зарядки, пианино для супруги и обязательно раскладной диван для гостей. . Остановились на варианте планировки с проходной гостиной, из которой можно попасть во все комнаты. Для того чтобы она была светлая, использовали белые двери в потолок со стеклом и фрамугой. Это также добавило парадности гостиной комнате. . Колонны в квартире остались в кирпиче, его немного оштукатурили, чтобы он не был с острыми краями, и покрасили. . Прихожая достаточно узкая, чтобы не делать её ещё уже, туда встал узкий шкаф для верхней одежды и хранения хоз. инвентаря. А в образовавшуюся нишу встала банкетка. За банкеткой на стене использована фреска, которую можно помыть при необходимости. . При выходе из прихожей в распор между стенами установили турник. . Кухня получилась яркая в осенней гамме с ярким фартуком из изумрудного цвета плитки и вставкой изразцов у мойки. В простенке у окна расположилась коллекция тарелок клиентов, а под подоконником остался "брежневский холодильник" как дополнительное место хранения. . Спальня получилась многофункциональная. При входе в комнату сначала видно рабочее место со шкафами, а за шторами прячется зона спальни. . В спальне разместилась кровать, винтажное зеркало в пол и пианино у окна. За счет штор-ширм пространство спальни стало более уютным и камерным. . Детская комната выполнена в современном стиле, но чтобы не разрывать единого пространства использованы карнизы, пол как в остальных комнатах квартиры. Стена у кровати частично из настоящего кирпича - часть колонны, а частично продолжена клинкерным кирпичом. Кровать вписана в систему хранения из стеллажа и шкафа для хранения одежды и других вещей. У окна большой стол для занятий и хобби. . Санузел в квартире совмещённый, обязательно нужно было вписать стиральную машину и всю необходимую сантехнику, а также водонагреватель. . Водонагреватель поместился в шкаф над инсталляцией, а стиральная машина спрятана в тумбе под раковину. . Интересным элементом стало окно между санузлом и кухней, выложенное стеклоблоками. Окно было ещё до ремонта в квартире и его хотелось сохранить в той или иной форме.
38 фотографий







































