Квартира в ЖК "Новочеремушкинская, 17"
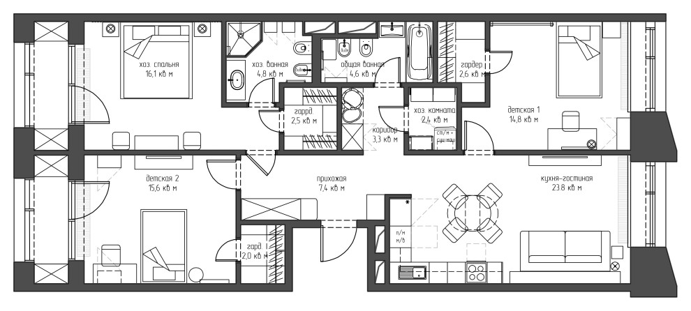
Квартира 108 кв м для семьи с двумя девочками. Квартира в новостройке. Изначально абсолютно без стен. Предложенная застройщиком планировка не подходила заказчикам, поэтому разработали новую. Цели перепланировки были следующие: . 1) Просторная кухня-гостиная со столом, раскладным диваном и стеллажом для коллекции книг и моделей автомобилей . 2) Комфортная хозяйская спальня с не проходной гардеробной . 3) В ванных предусмотреть биде и много места для хранения . 4) В детских гардеробные, кровать под матрас 120 см и рабочий стол . 5) В комнате старшей дочери - огромное зеркало и место для танцев . 6) Отдельное пространство для кошки в коридоре . . По дизайну пожелания были следующие: . 1) Насыщенная цветовая гамма - синий для гостиной, зеленый для спальни, черный - для комнаты старшей дочери и розовый - для комнаты младшей . 2) Текстуры дерева на кухне и в ванных комнатах . 3) Использование рисунков младшей дочери в интерьере
46 фотографий















































