Квартира в ЖК Фридом
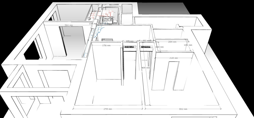
В данной квартире проектом предусмотрена мульти сплит-система. . В двух спальнях, запроектированы внутренние блоки настенного типа. В кухне-гостиной было принято решение установить канальную сплит-систему скрытой установки с щелевыми диффузорами над кухоными шкафами и в зоне гостинной. С расположением климатического оборудования вы можете ознакомится посмотрев чертежи.
Год реализации: 2022
Стоимость проектирования: 525 000 ₽
г. Москва
5 фотографий





