logo
ВК-2.jpg

Другие фотографии в проекте Квартира в ЖК Фридом

IMG_1627.PNG
IMG_1626.PNG
IMG_1628.PNG
IMG_1629.PNG

Вопросы к фото 0

Задайте вопрос

Вам ответят эксперты. Пришлем уведомление, когда вам ответят

Москва, Традиционный

Mihail Volkov

Mihail Volkov

Отопление; вентиляция; кондиционирование

Смотреть профиль

0

отзывов

0

Рейтинг

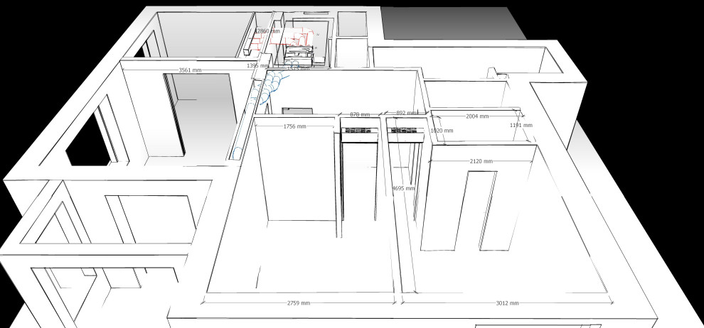
Квартира в ЖК Фридом

В данной квартире проектом предусмотрена мульти сплит-система. . В двух спальнях, запроектированы внутренние блоки настенного типа. В кухне-гостиной было принято решение установить канальную сплит-систему скрытой установки с щелевыми диффузорами над кухоными шкафами и в зоне гостинной. С расположением климатического оборудования вы можете ознакомится посмотрев чертежи.

Вопросы к фото 0