Квартира в цветах Pantone 2021
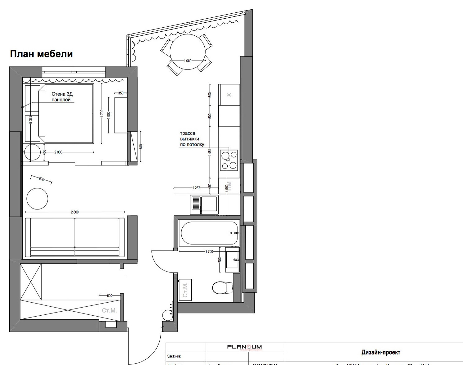
Этот лаконичный, стильный интерьер мы готовили для молодой девушки, которая видела свой новый дом спокойным и сдержанным, но с цветовыми пятнами - любимые цвета желтый и зеленый. . Из особенностей - наша клиентка не смотрит телевизор, поэтому нам не нужно было привязываться к местам его установки; строгий отказ от радиаторов, поэтому пол абсолютно во всех комнатах с подогревом и выложен керамической плиткой; так же заказчица не хотела устанавливать кондиционеры и альтернативным решением было установить потолочные вентиляторы. . В оформлении этого объекта мы взяли за основу минимализм, дополненный яркими акцентами, которые легко и без усилий можно сменить. Так, в доминирующие серые оттенки в гостевой зоне мы деликатно вписали ярко-желтые элементы. Уюта в спальне добавляют текстурные 3D-панели в приглушенных оттенках зеленого, а глубокий серый в прихожей и ванной придает интерьеру сдержанность. . По проекту застройщика квартира была однокомнатной, однако хозяйка была не против перепланировки и нам удалось организовать: отдельную спальню, гардеробную комнату, зону кухни и гостиной. Поэтому мы перенесли вход в комнату и присоединили балкон к кухне. В увеличенной кухне мы организовали столовую зону у окна, откуда открывается обзорный вид на город с 24 этажа. Кухонная мебель с высокими шкафами получилась функциональной и визуально «вытягивает» пространство. . В комнате мы установили раздвижную стеклянную перегородку, разделяющую спальню и гостевую зону. Она не только стильная, но и позволяет в дневное время запустить дополнительный дневной свет в гостиную. Минимум мебели, пастельные тона и шторы “blackout” в спальне организовывают зону спокойствия и уединенности. . Гардеробную комнату мы организовали в зоне коридора и спрятали за зеркальной дверью. Здесь мы расположили вместительные стеллажи и зону построчной с сушильной машиной. . . . Локация: г. Киев, ЖК Каховская . Площадь: 44 кв.м
14 фотографий














