Квартира в Санкт-Петербурге 144 м2
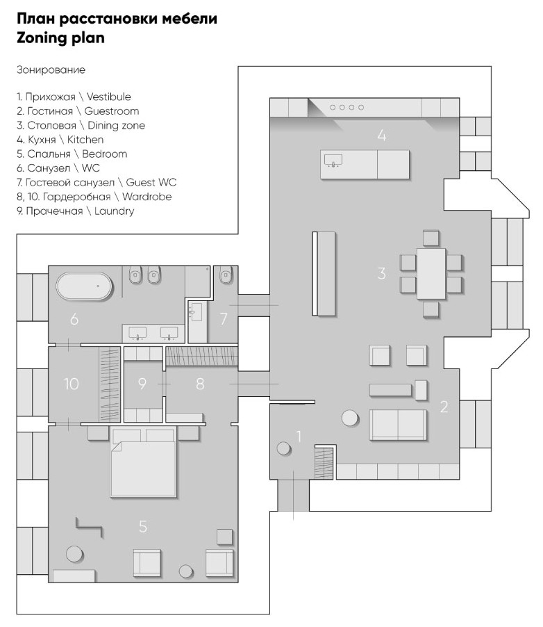
Дизайн интерьера в большой квартире в Санкт-Петербурге. Планировка квартиры разделена на два крупных блока - общественный (Прихожая, гостиная, столовая, кухня, гостевой санузел) и интимная (Спальня, хозяйский санузел, гардеробная и техническое помещение).
Год реализации: 2021
г. Санкт-Петербург, 8 улица Чехова, Центральный район
24 фотографии

























