Квартира в Санкт-Петербурге 144 м2

Другие фотографии в проекте Квартира в Санкт-Петербурге 144 м2

Вопросы к фото 0

Задайте вопрос

Вам ответят эксперты. Пришлем уведомление, когда вам ответят

Москва, Переходный

Илья Крысенко

Илья Крысенко

Дизайнеры интерьера

Смотреть профиль

0

отзывов

0

Рейтинг

Квартира в Санкт-Петербурге 144 м2

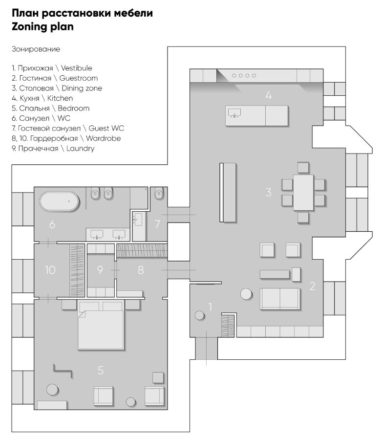
Дизайн интерьера в большой квартире в Санкт-Петербурге. Планировка квартиры разделена на два крупных блока - общественный (Прихожая, гостиная, столовая, кухня, гостевой санузел) и интимная (Спальня, хозяйский санузел, гардеробная и техническое помещение).

Вопросы к фото 0