Квартира-студия с видом на море. г. Владивосток
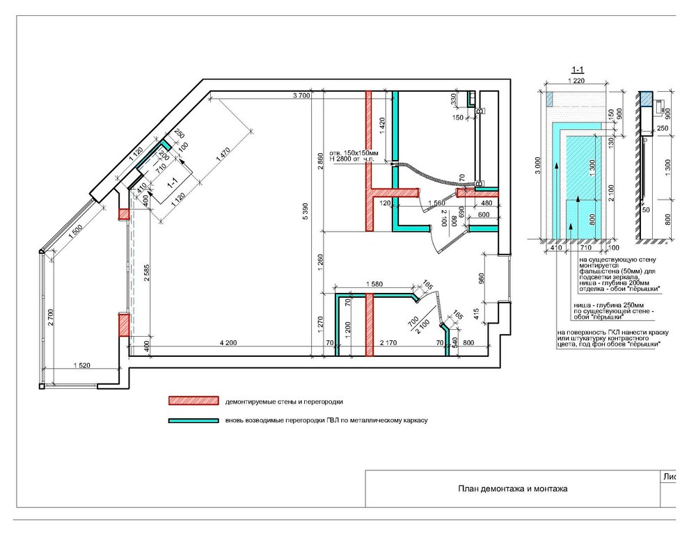
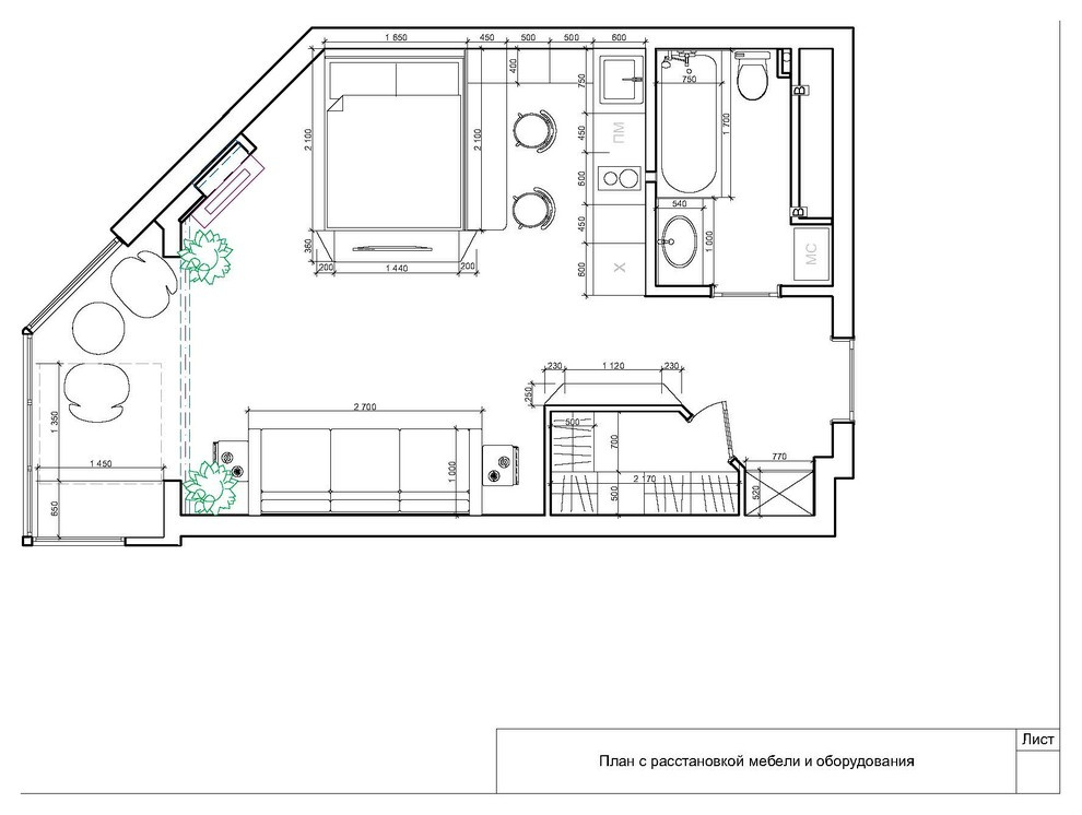
Квартира находится в г. Владивостоке. Вся работа от проекта до реализации была выполнена удаленно. Материалы были подобраны в местных магазинах, а отделкой и мебелью по моим эскизам занималась бригада и мебельная мастерская, с которыми уже были выполнены другие объекты в этом городе. . Задача была сделать уютную квартиру для молодой девушки-студентки. При этом квартира-студия функционально должна была совместить все жизненные сценарии большой квартиры...
Год реализации: 2017
Стоимость проектирования: 34 999 ₽
г. Владивосток
14 фотографий













