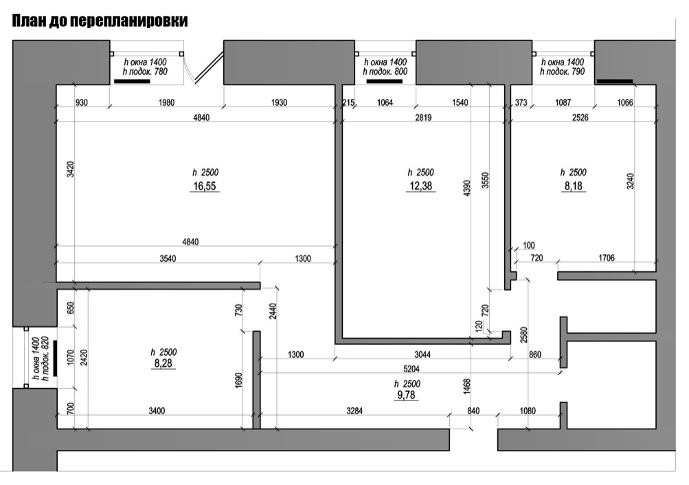
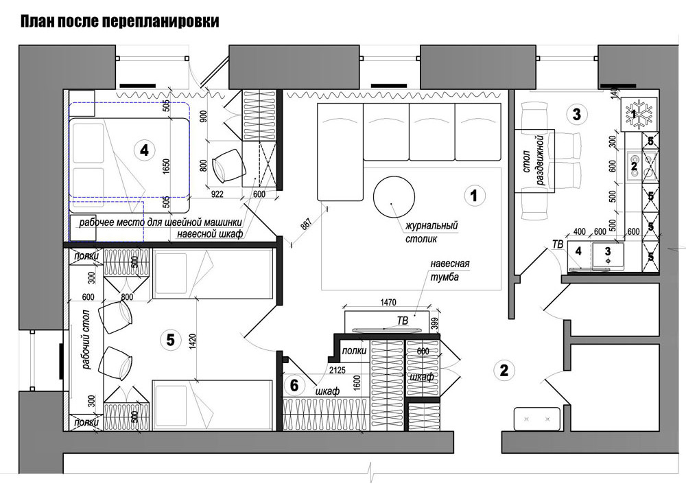
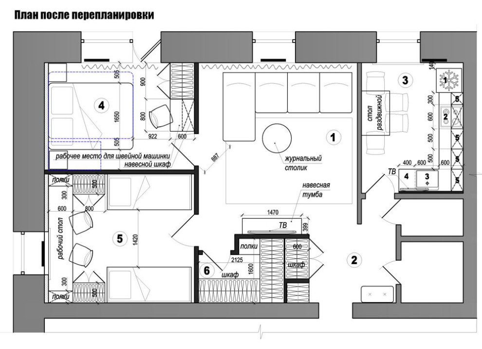
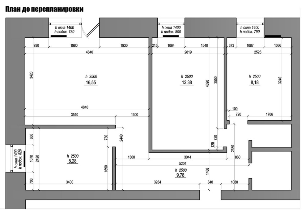
Профиль пользователяКвартира с перепланировкой для молодой семьиГод реализации: 202010 фотографийПоделитьсяСохранитьКвартира с перепланировкой для молодой семьиПоделитьсяСохранитьКвартира с перепланировкой для молодой семьиПоделитьсяСохранитьКвартира с перепланировкой для молодой семьиПоделитьсяСохранитьКвартира с перепланировкой для молодой семьиПоделитьсяСохранитьКвартира с перепланировкой для молодой семьиПоделитьсяСохранитьКвартира с перепланировкой для молодой семьиПоделитьсяСохранитьКвартира с перепланировкой для молодой семьиПоделитьсяСохранитьКвартира с перепланировкой для молодой семьиПоделитьсяСохранитьКвартира с перепланировкой для молодой семьиПоделитьсяСохранитьКвартира с перепланировкой для молодой семьиПоделитьсяСохранить