logo
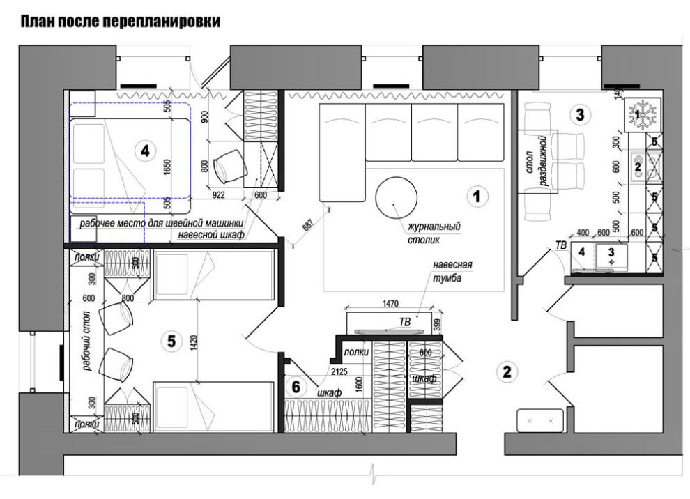
Квартира с перепланировкой для молодой семьи

Другие фотографии в проекте Квартира с перепланировкой для молодой семьи

Вопросы к фото 0

Задайте вопрос

Вам ответят эксперты. Пришлем уведомление, когда вам ответят

Контемпорари