Квартира на Русановской
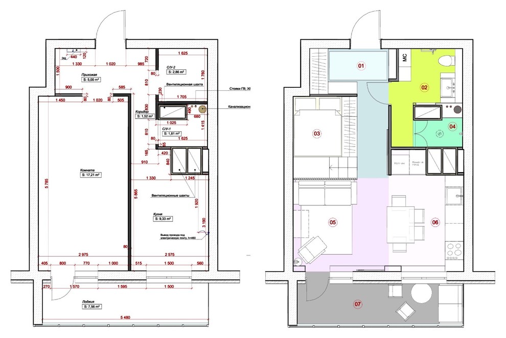
Из однокомнатной квартиры общей площадью 45м.кв с раздельным санузлом и ванной стояла задача создать многофункциональное пространство, включающее в себя спальню, гостиную с возможностью положить в ней спать как минимум двух гостей, столовую, кухню, кладовую и большую удобную ванную комнату. Квартира вышла мобильной. Объединив кухню и комнату, получилось создать общесемейное пространство, где расположилась гостиная и столовая. Спальня, за счет использования приема террасирования, поднялась к потолку, а под ней образовалась большая площадь для хранения крупногабаритных вещей и одежды. Доступ в кладовую осуществляется через шкаф в холле. Подъем в спальню-по ступенькам, которые в то же время и выдвижные полки.Наличие откатной перегородки позволяет при желании отделить кухню от гостиной. Ванная и туалет были объединены и на месте старого санузла появилась душ-комната. Заказчики: семейная пара с сыном, закончившим 9 класс
11 фотографий











