Квартира на пр. Буденного
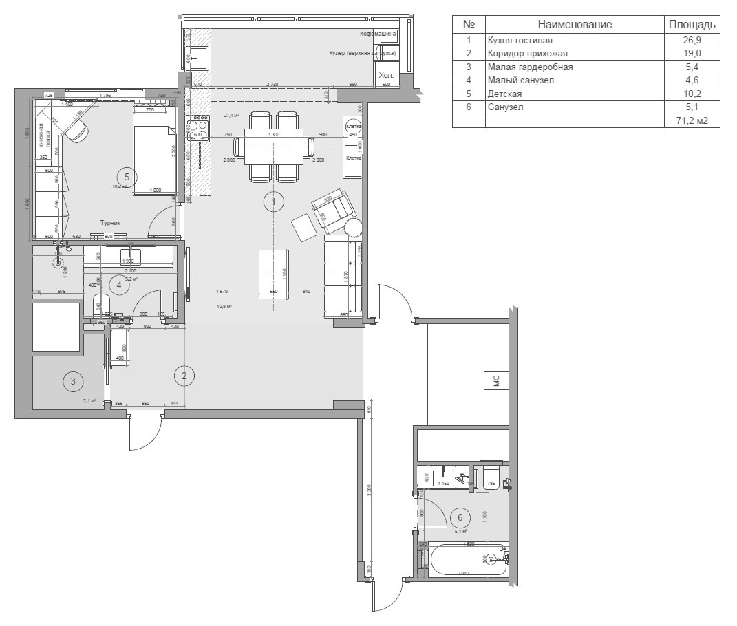
@ Рум-тур по этому объекту здесь: https://www.youtube.com/watch?v=Sh_MR1eHv1c&t=177s . . @ Редизайн этой квартиры был необходим в связи с ростом семейства и перепланировкой. Изначально очень просторная кухня-гостиная (60 кв.м.) позволяла выделить место для еще одной комнаты. Когда ее обладатель – юный джентльмен – подрос, решено было спланировать ему личное пространство. . @ Уставшие от строгого минимализма хозяева, очень хотели внести в дом нежные “вкусные” цвета и округлые формы. Важно было так же сохранить ощущение простора и легкости – поэтому в основе цветовой гаммы был выбран всегда модный – светлый бежевый. . @ Основная сложность – как во многих проектах – кухня. Уместить технику, рабочую поверхность, хранение, естественную освещенность и вид за окном – непростая задача. Совместно с заказчиками продумали множество вариантов и выбрали победителя. . Линейная кухня аккуратно вписана в пространство - общее с гостиной. . @ Композиция кухни-гостиной сильно уплотнилась (часть площади забрала детская). Чтобы сгладить ее, дверь в комнату сына сделали незаметной – в скрытом коробе. Теперь гостиная выглядит цельным пространством, а стена – лаконичной, несмотря на обилие функционала и примыкающей мебели. . @ Декорируя санузлы - позволили себе много необычного декора и световых сценариев. Базовую плитку песчаной фактуры разбавили мозаичным полотоном (в 1 малом санузле), контрастной фактурой дерево (в ванной). Основное линейное освещение в обоих случаях дополнено подвесами у зеркал. Это не только украшение, но и комфортный отраженный, рассеянный свет. . @ Комната сына - детская - рассчитана на потребностb владельца в разном возрасте. Все хранение (открытое и закрытое), зона для творчества и уроков, спальное место, правильный свет и много простора. . @ В детской сохранили существующий потолок - к нему идеально примкнула встроенная мебель. Значительно сэкономили на ремонте. . @ Коридор - холл/прихожая - отделан согласно концепции. Легкий, но необычный декор из гипсовых панелей Art pole с эффектом bubbles - создает эффект воздушных пузырьков, которые по-разному подсвечиваются естественным дневным светом и вечерней подсветкой.
46 фотографий














































