Квартира на Полярной
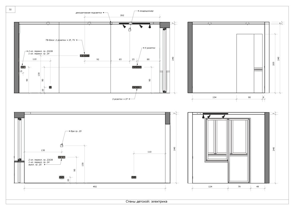
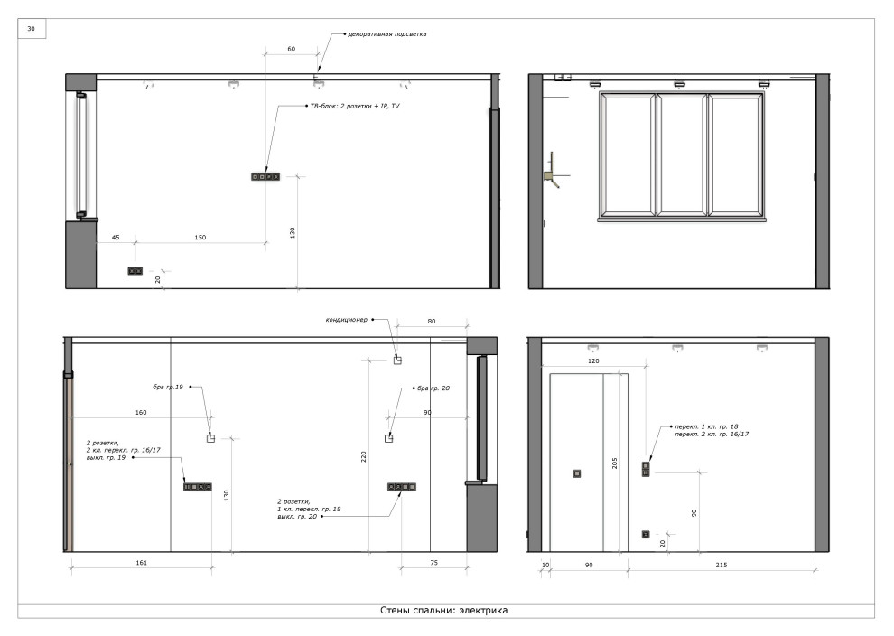
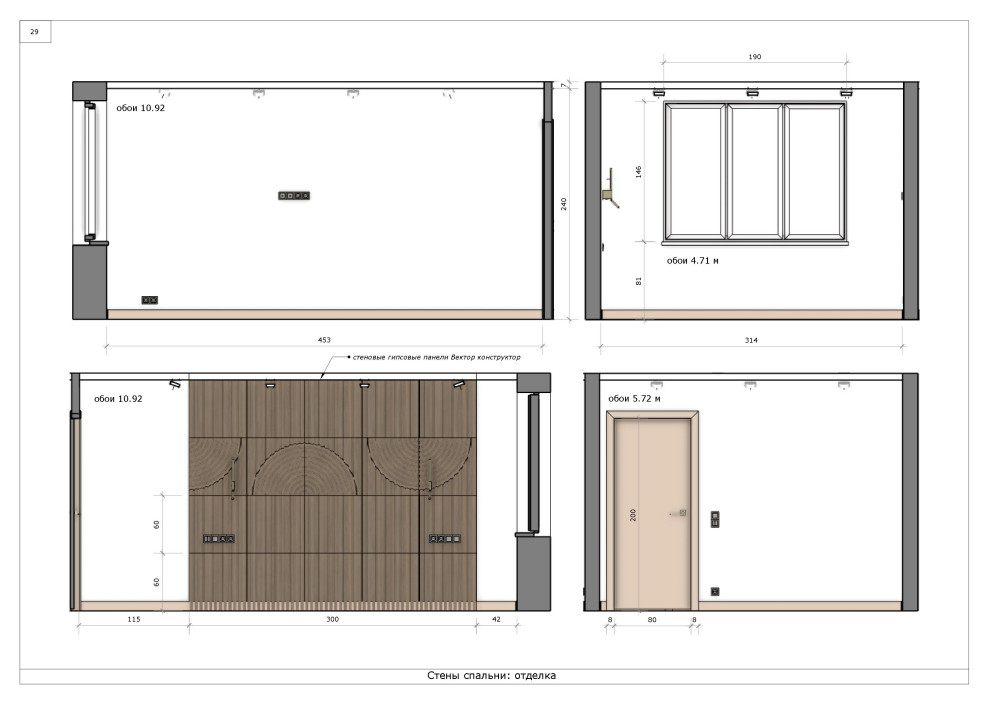
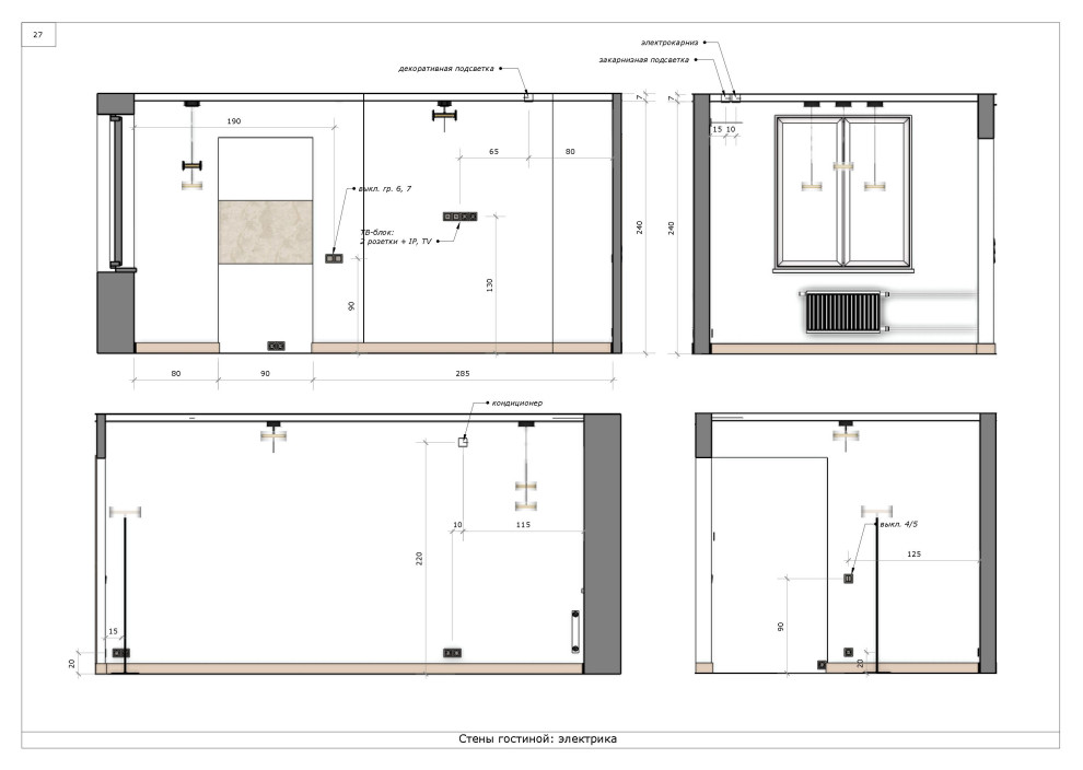
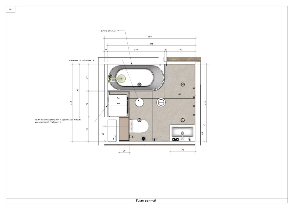
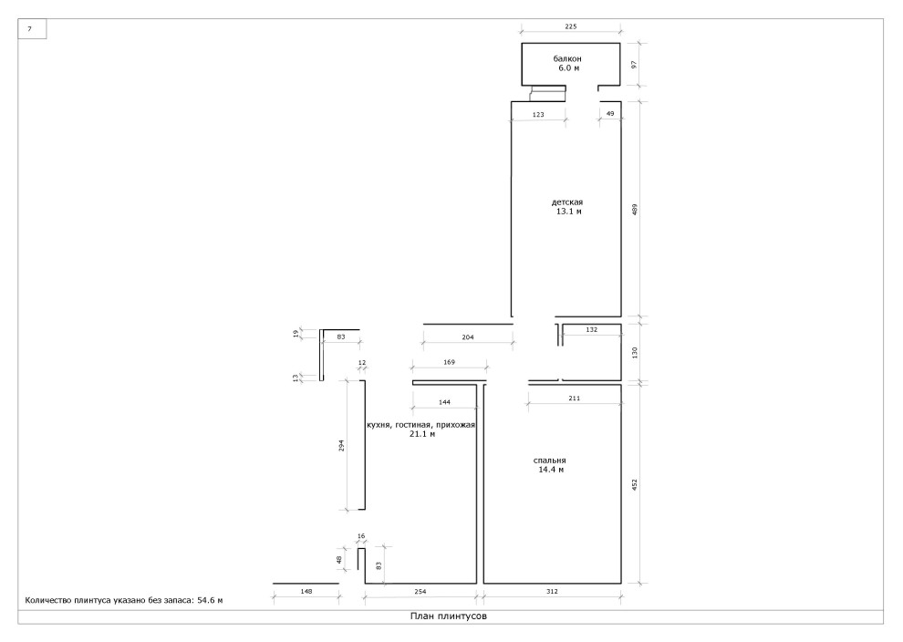
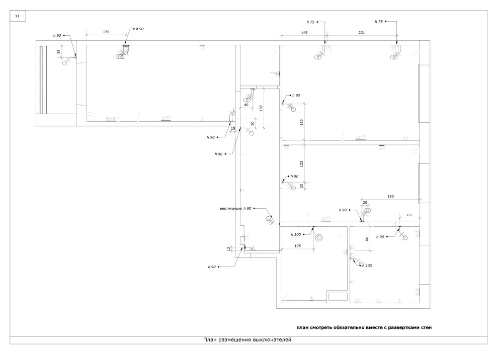
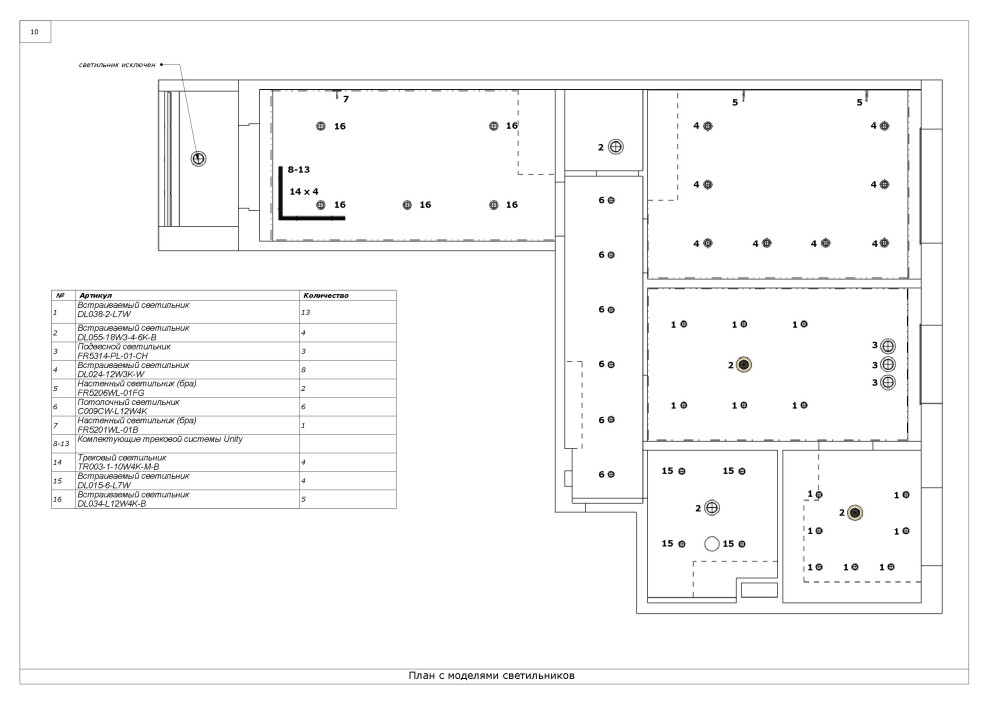
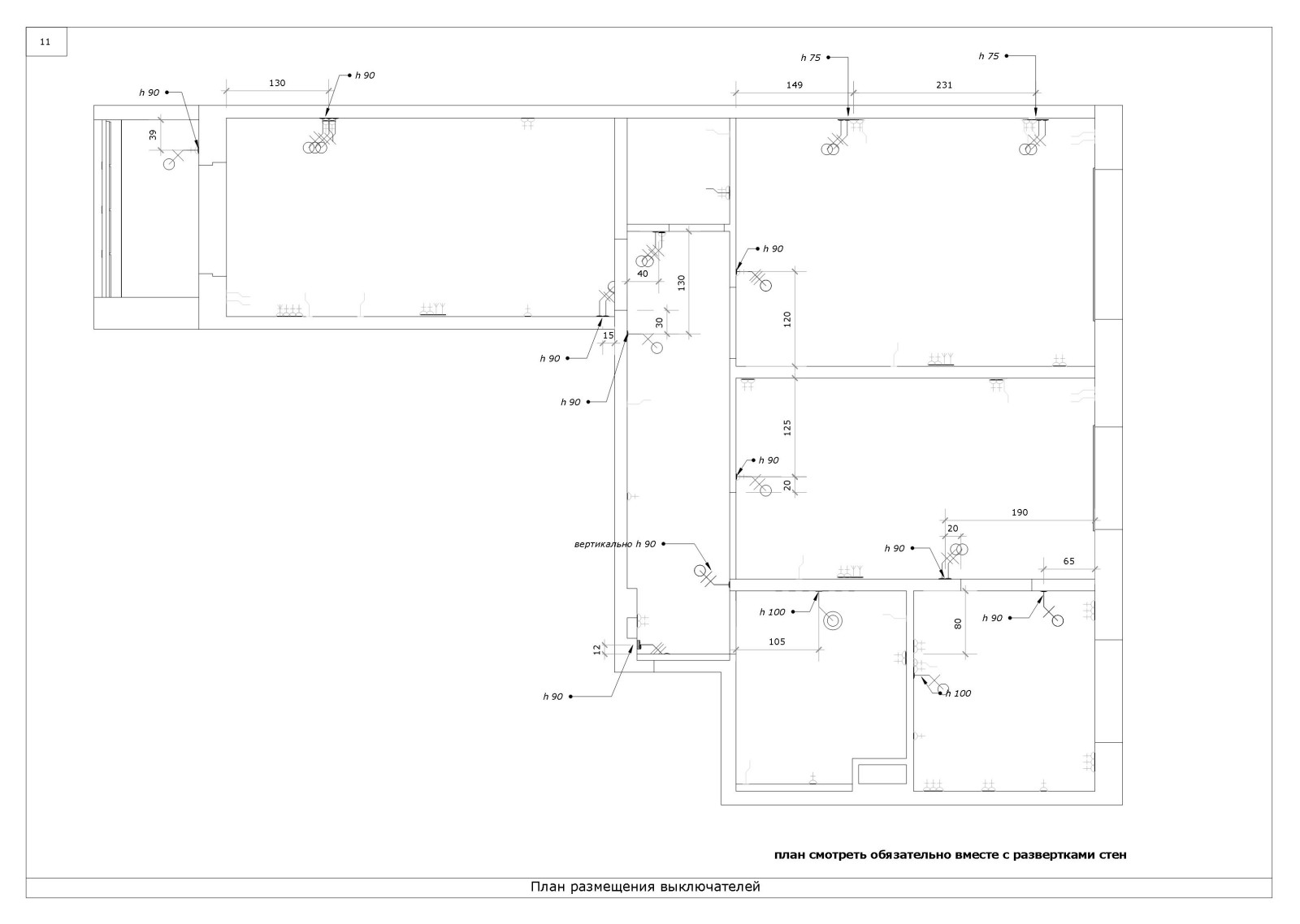
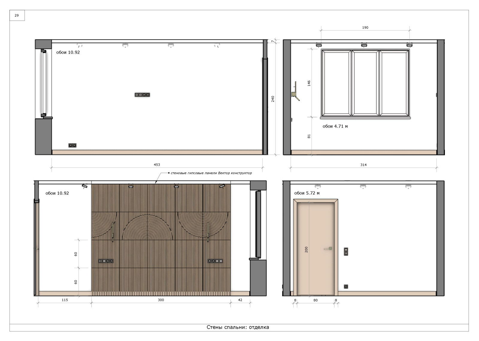
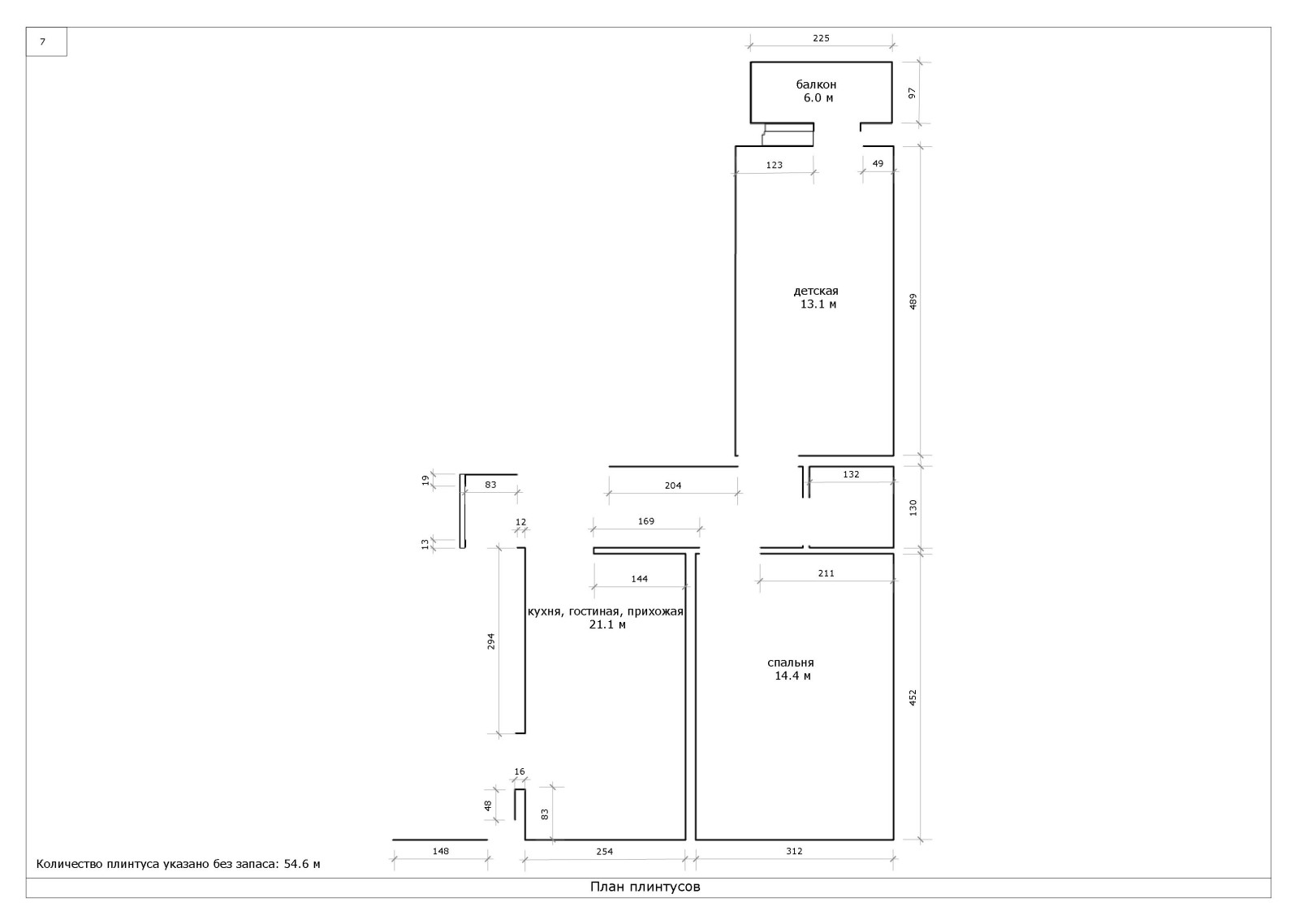
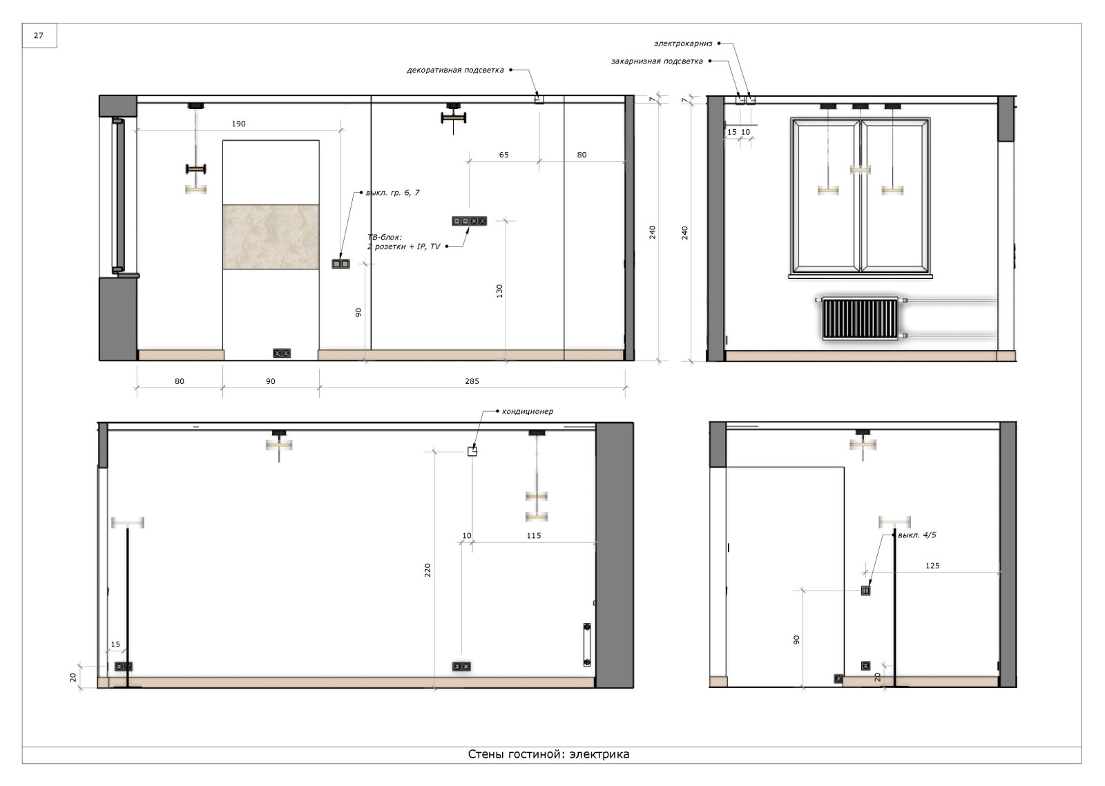
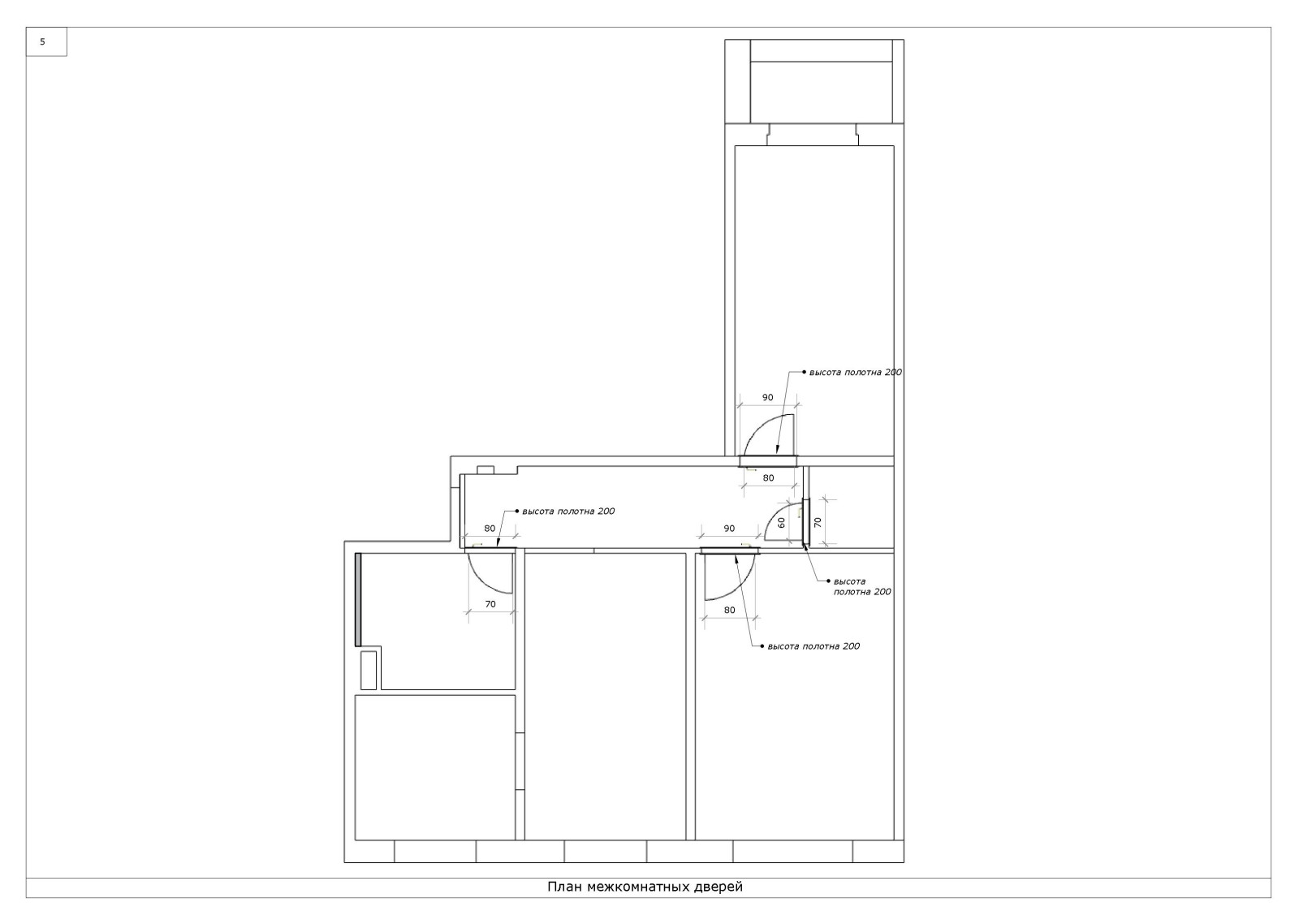
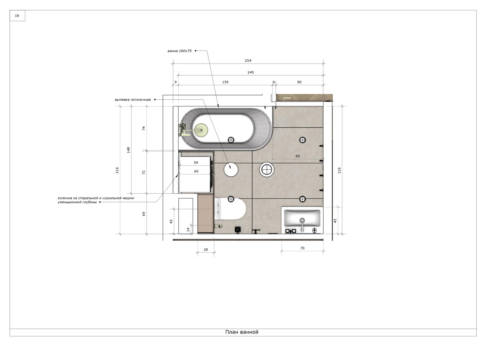
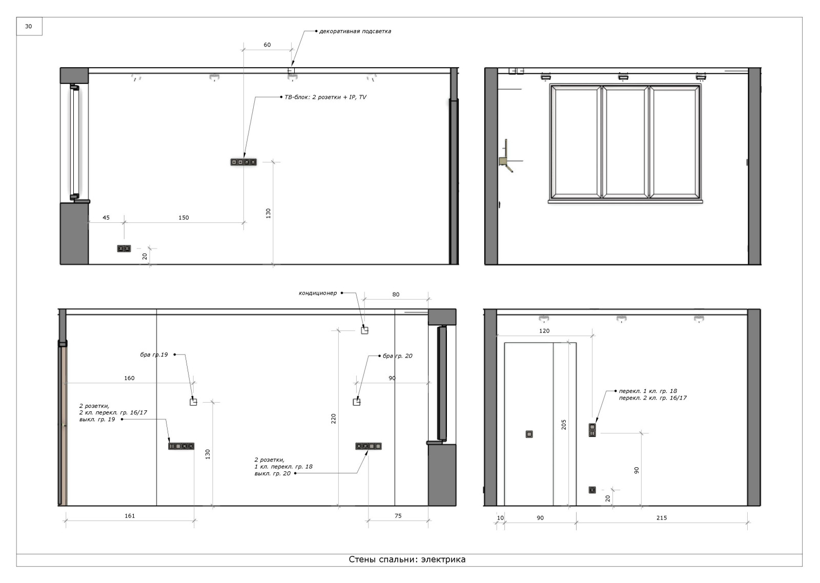
Трехкомнатная квартиры на Полярной в Москве. . Для семейной пары с ребенком. . В этой квартире в панельном доме была проведена перепланировка. . Через проем соединили кухню с гостиной, объединили и расширили санузел на коридор, организовали гардеробную в конце коридора. . По стилю - современный дизайн, с использованием природных текстур и цветов.
Год реализации: 2024
Стоимость проектирования: 275 000 ₽
г. Москва, Полярная улица, Северо-Восточный административный округ
45 фотографий














































