Квартира на Полярной

Другие фотографии в проекте Квартира на Полярной

Вопросы к фото 0

Задайте вопрос

Вам ответят эксперты. Пришлем уведомление, когда вам ответят

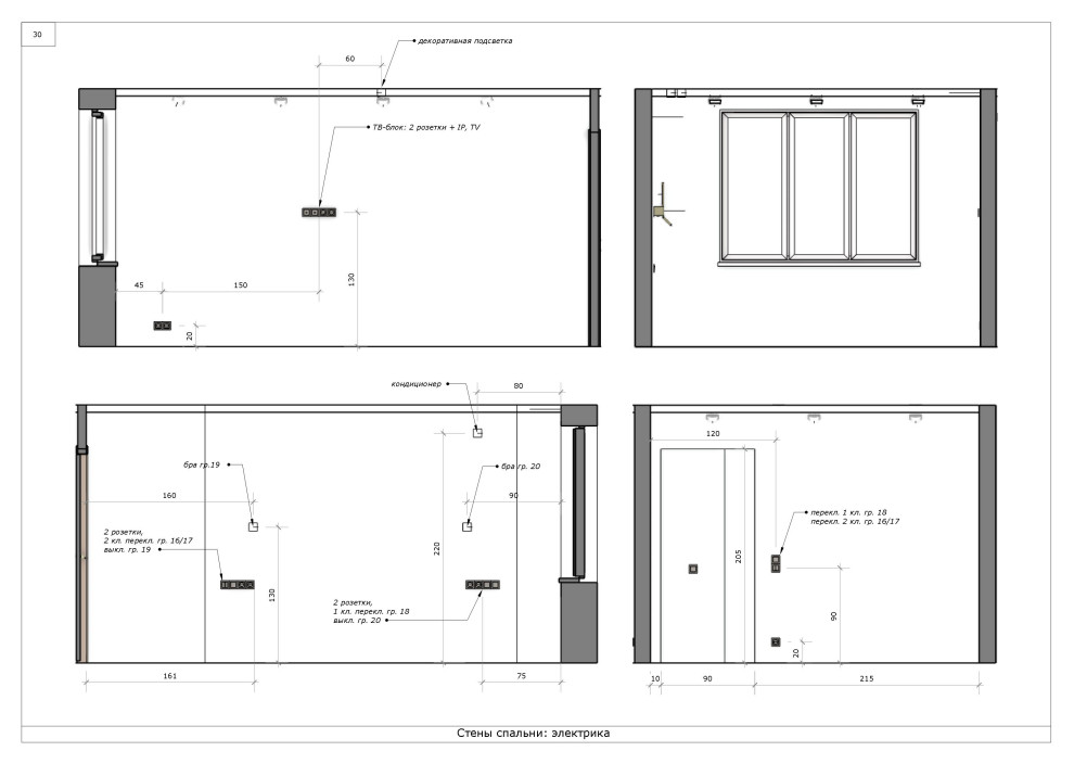
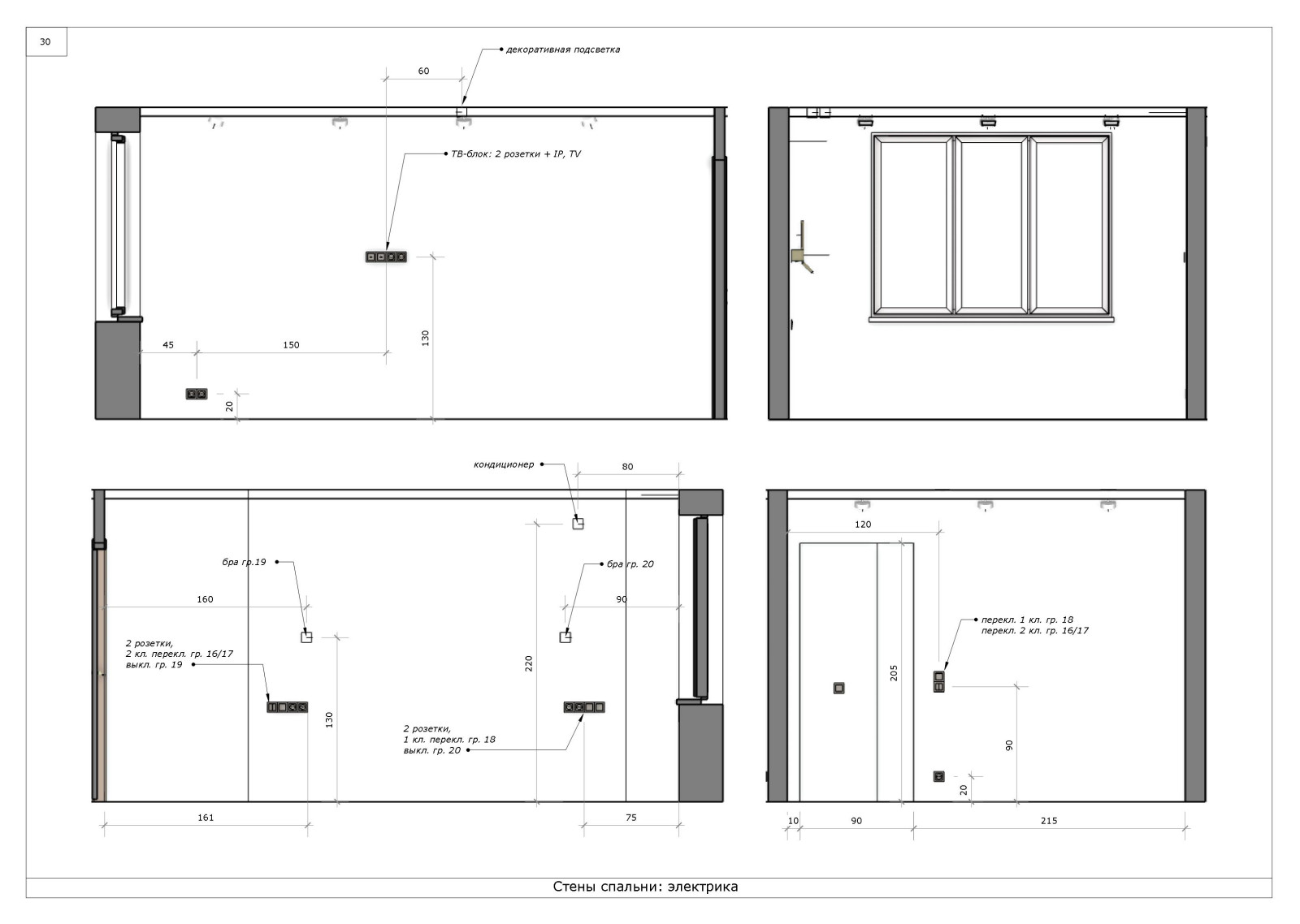
Дизайн квартиры в панельном доме, Дизайн-проект квартиры, Контемпорари, Москва, дизайн в современном стиле, дизайн интерьера, дизайн трехкомнатной квартиры, планировка квартиры в панельном доме, стены спальни - электрика

Дмитрий Красса

Дмитрий Красса

Дизайнеры интерьера

Смотреть профиль

40

отзывов

4.97

Рейтинг

Квартира на Полярной

Трехкомнатная квартиры на Полярной в Москве. . Для семейной пары с ребенком. . В этой квартире в панельном доме была проведена перепланировка. . Через проем соединили кухню с гостиной, объединили и расширили санузел на коридор, организовали гардеробную в конце коридора. . По стилю - современный дизайн, с использованием природных текстур и цветов.

Вопросы к фото 0