Квартира на Московском проспекте
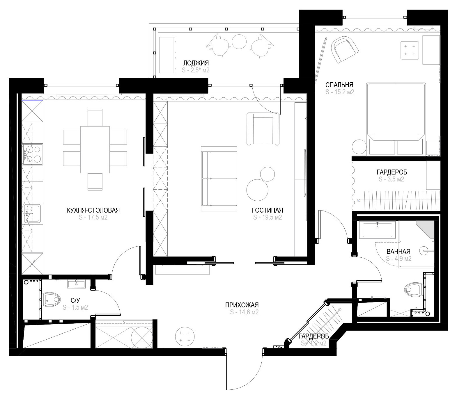
Квартира в Московском районе Санкт-Петербурга. . . Дизайнер: Екатерина Дудкина . Руководитель проекта: Ирина Килина . . Проект выполнен совместно с архитектурной студией "Автор." . . Фотограф: Иван Сорокин . . Заказчица купила квартиру в новостройке и доверила нам проектирование квартиры «с чистого листа». . . Двухкомнатная квартира с панорамным остеклением и хорошим видом из окон на Московский проспект площадью 80 кв.м. . . Комфортная кухня перетекает в гостиную через сформированный шкафами портал, лоджия при гостиной, спальня с собственной гардеробной, два санузла, холл и отдельно выделенная зона постирочной – такой состав помещений получился после перепланировки квартиры. . . Владелица квартиры поставила задачу создать интерьер в мужском стиле, в котором ей будет комфортно находиться. . . Темные глубокие цвета напольных покрытий играют в контрасте с мягкими, пастельными цветами стен и подчеркивают формы декоративной составляющей интерьера.
21 фотография





















