Квартира на Гарибальди
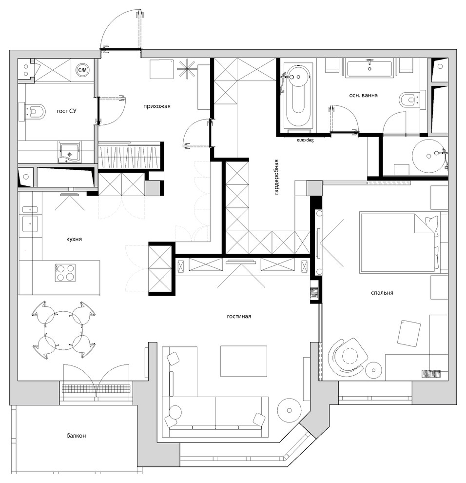
Квартира в Москве. 90 м2. . Концептуальное решение - в одной связке: проходные кухня-гостиная-спальня. Это три главных объема. Максимальная активность человека на кухне, средняя в гостиной и минимальная с спальне. И это, по сути, один большой и естественный цикл деятельности человека. Эти комнаты расположены по одной линии, имеют окна и выход на балкон. Человек свободно перемещается по этим объемам, согласно тому, что ему в данную минуту необходимо. Второстепенные помещения расположены в глубине квартиры. Это - прихожая, коридор-библиотека, ванная комната с душевой кабиной, гостевой туалет-постирочная и большая гардеробная с зоной для глажки. Все вместе это образует "Большое кольцо". Архитектор Сахаров Дмитрий
16 фотографий
















