
Архитекторы
5
·
10 отзывов
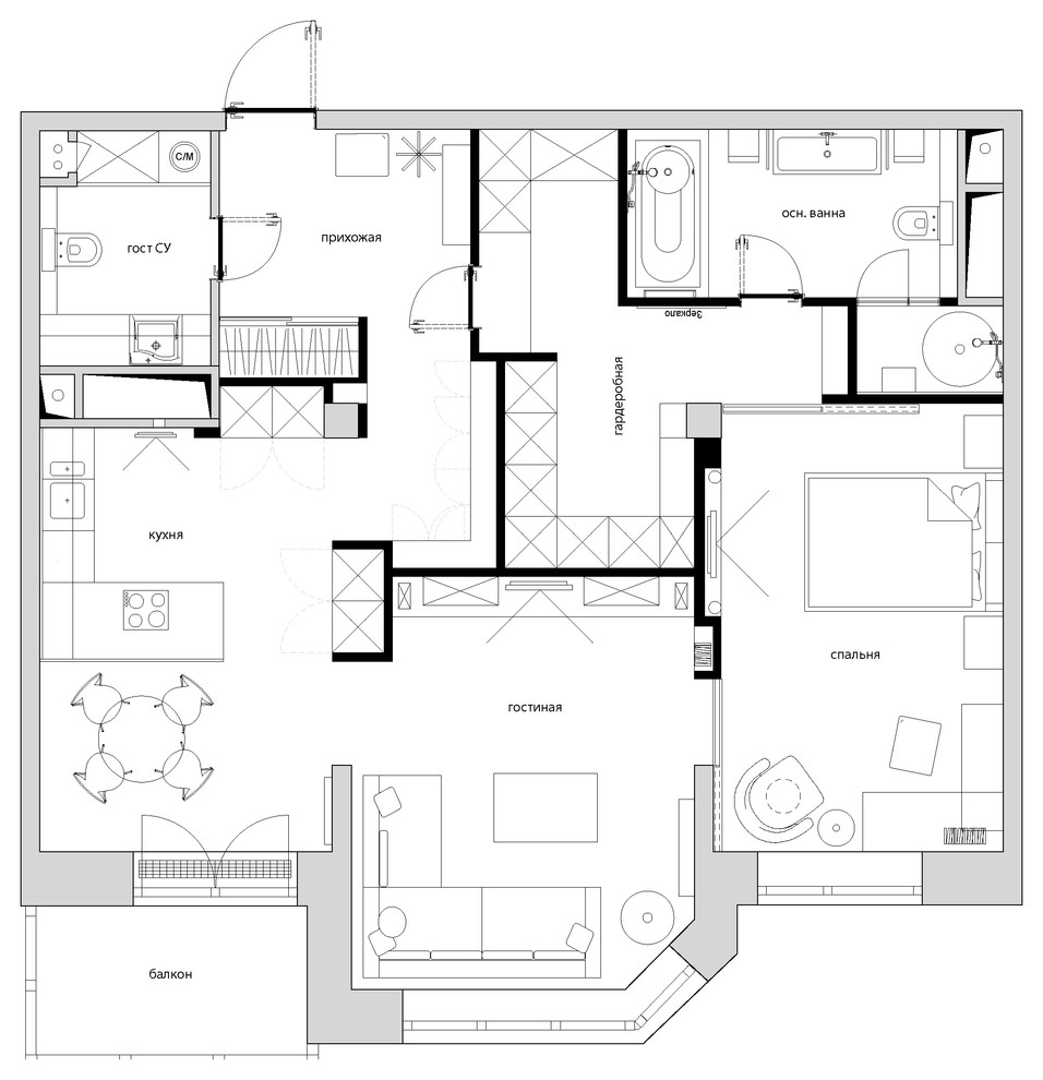
Квартира на Гарибальди
Квартира в Москве. 90 м2. . Концептуальное решение - в одной связке: проходные кухня-гостиная-спальня. Это три главных объема. Максимальная активность человека на кухне, средняя в гостиной и минимальная с спальне. И это, по сути, один большой и естественный цикл деятельности человека. Эти комнаты расположены по одной линии, имеют окна и выход на балкон. Человек свободно перемещается по этим объемам, согласно тому, что ему в данную минуту необходимо. Второстепенные помещения расположены в глубине квартиры. Это - прихожая, коридор-библиотека, ванная комната с душевой кабиной, гостевой туалет-постирочная и большая гардеробная с зоной для глажки. Все вместе это образует "Большое кольцо". Архитектор Сахаров Дмитрий
Другие фотографии в проекте
Вопросы к фото 0
Задайте вопрос
Вам ответят эксперты. Пришлем уведомление, когда вам ответят




