Квартира на Большой Никитской
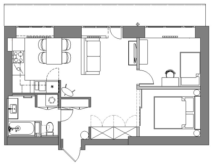
Дизайн 3-х комнатной квартиры сталинки в условно скандинавском стиле был разработан для молодой пары с ребенком. Она находится в конструктивистском доме 1925 года постройки. Планировка очень простая, но при этом очень эффективная.
Год реализации: 2018
Стоимость проектирования: 275 000 ₽
г. Москва, Центральный административный округ
23 фотографии
























