Квартира Галерея
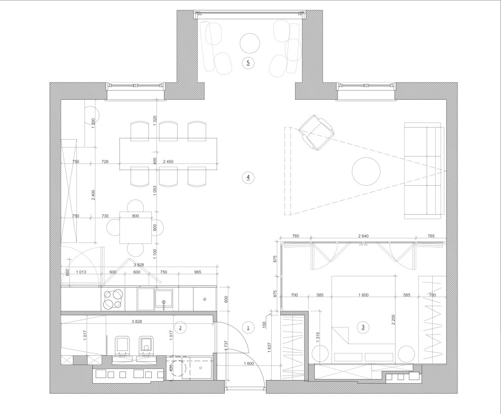
Проект гибкого жилого пространства с живописными каменными слэбами на полу, монументальным столом из камня, графичными светильниками. . Квартира может функционировать по двум сценариям: . как жильё или как галерея, в зависимости . от потребности.
Год реализации: 2020
г. Москва, Басманный переулок, Центральный административный округ
8 фотографий









