Дом у моря. Реконструкция.
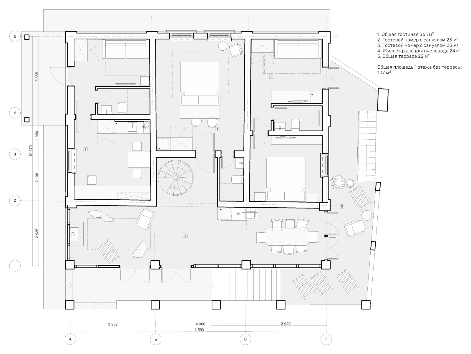
Проект реконструкции частного дома с адаптацией под небольшую гостиницу. . Задачей проекта было вернуть утраченный образ здания, характерный для региона восточного причерноморья. Современность проекта заключена в тактичном отношении к духу места и эффективной функциональной адаптации. Пережив, продиктованные временем, немногочисленные но нелогичные трансформации в начале девяностых, здание обретает новую жизнь и новую ценность, благодаря новому наполнению в наше время. . Здание сохранило площадь застройки и этажность, при этом полезная площадь здания расширена за счет обустройства цокольного этажа и мансарды. . В отделке используются характерные для региона материалы. . Широко применяются материалы вторичного использования: конструкции каркаса крыши, покрытия пола и кровли. Столярные изделия (окна и двери) выполняются местными мастерами. В декоре используются ковры и керамика из коллекции заказчика.
12 фотографий













