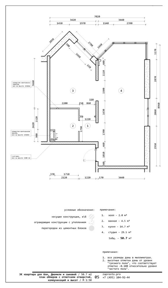
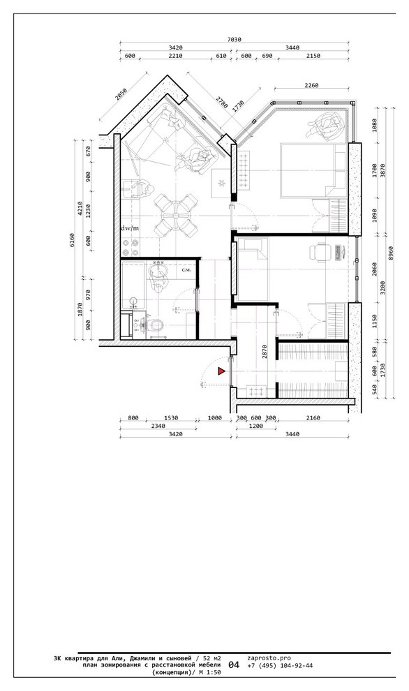
Профиль пользователяКвартира для пары и сыновей в ЖК Зеленые Аллеи | МинимализмГод реализации: 2016Стоимость проектирования: 34 999 ₽г. Видное4 фотографииПоделитьсяСохранитьКвартира для пары и сыновей в ЖК Зеленые Аллеи | МинимализмПоделитьсяСохранитьКвартира для пары и сыновей в ЖК Зеленые Аллеи | МинимализмПоделитьсяСохранитьКвартира для пары и сыновей в ЖК Зеленые Аллеи | МинимализмПоделитьсяСохранитьКвартира для пары и сыновей в ЖК Зеленые Аллеи | МинимализмПоделитьсяСохранить