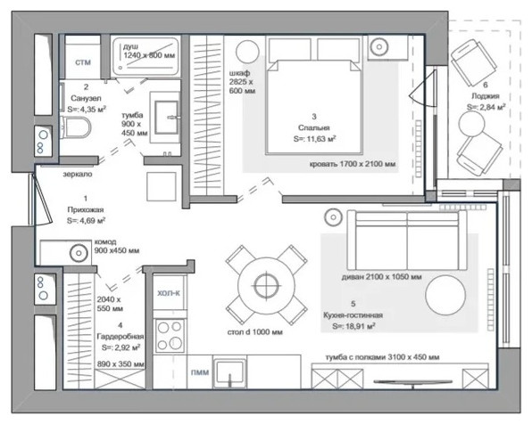
Профиль пользователяКвартира для молодой парыКонцепция и планировочное решение квартиры для пары.Год реализации: 2019Стоимость проектирования: 2 450 000 ₽3 фотографииПоделитьсяСохранитьAS1. Концепция и планировочное решениеПоделитьсяСохранитьAS1. Концепция и планировочное решениеПоделитьсяСохранитьAS1. Концепция и планировочное решениеПоделитьсяСохранить