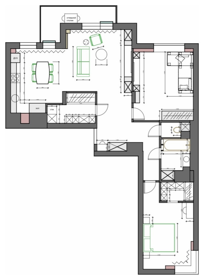
Квартира 98м2
Создание детальных коллажей по готовому планировочному решению. . Подбор конкретных позиций предметов мебели,отделочных материалов, декора,освещения из интернет-магазинов.
Год реализации: 2020
Стоимость проектирования: 2 450 000 ₽
8 фотографий









