Квартира для кулинарного блогера
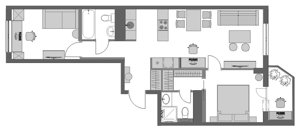
Заказчики проекта - молодая пара. Они любят проводить вечера в обществе своих друзей и в ближайшем будущем планируют пополнение. . . Таким образом, при разработке проекта перепланировки требовалось выделить детскую и организовать достаточно просторную гостиную, превратив двухкомнатную квартиру в евро-трешку. Эта задача была решена в полной мере, при том, что все мокрые зоны остались на своих прежних местах. Заказчики получили отдельную спальню с личным сан. узлом и гардеробной, детскую и красивую гостиную, в которой хозяйка могла оставаться в компании друзей даже во время приготовления праздничного ужина. . . Квартира решена в современном стиле с элементами классики. Стены и лепной декор выкрашены в благородный серо/бежевый оттенок, свойственный классическим интерьерам, а на полу уложен паркет «французская елка». Таким образом, удалось создать базовый интерьер, в который были добавлены яркие акценты в виде синего дивана и пуфов. А парадность интерьеру придает золотая фурнитура светильников. .
8 фотографий









