
Дизайнеры интерьера
0
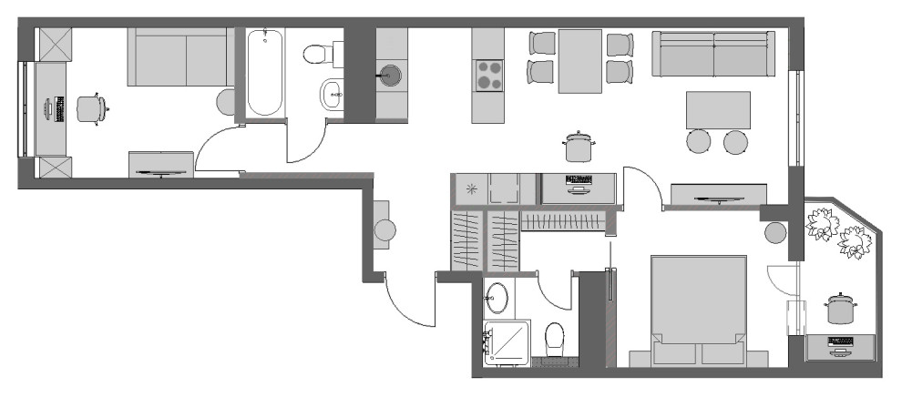
Квартира для кулинарного блогера
В ходе перепланировки выделили мастер-спальню с личной гардеробной и душевой, детскую и довольно просторную кухню-гостиную. При этом, все мокрые зоны на своих местах.
Другие фотографии в проекте
Вопросы к фото 0
Задайте вопрос
Вам ответят эксперты. Пришлем уведомление, когда вам ответят




