Квартира для инженера
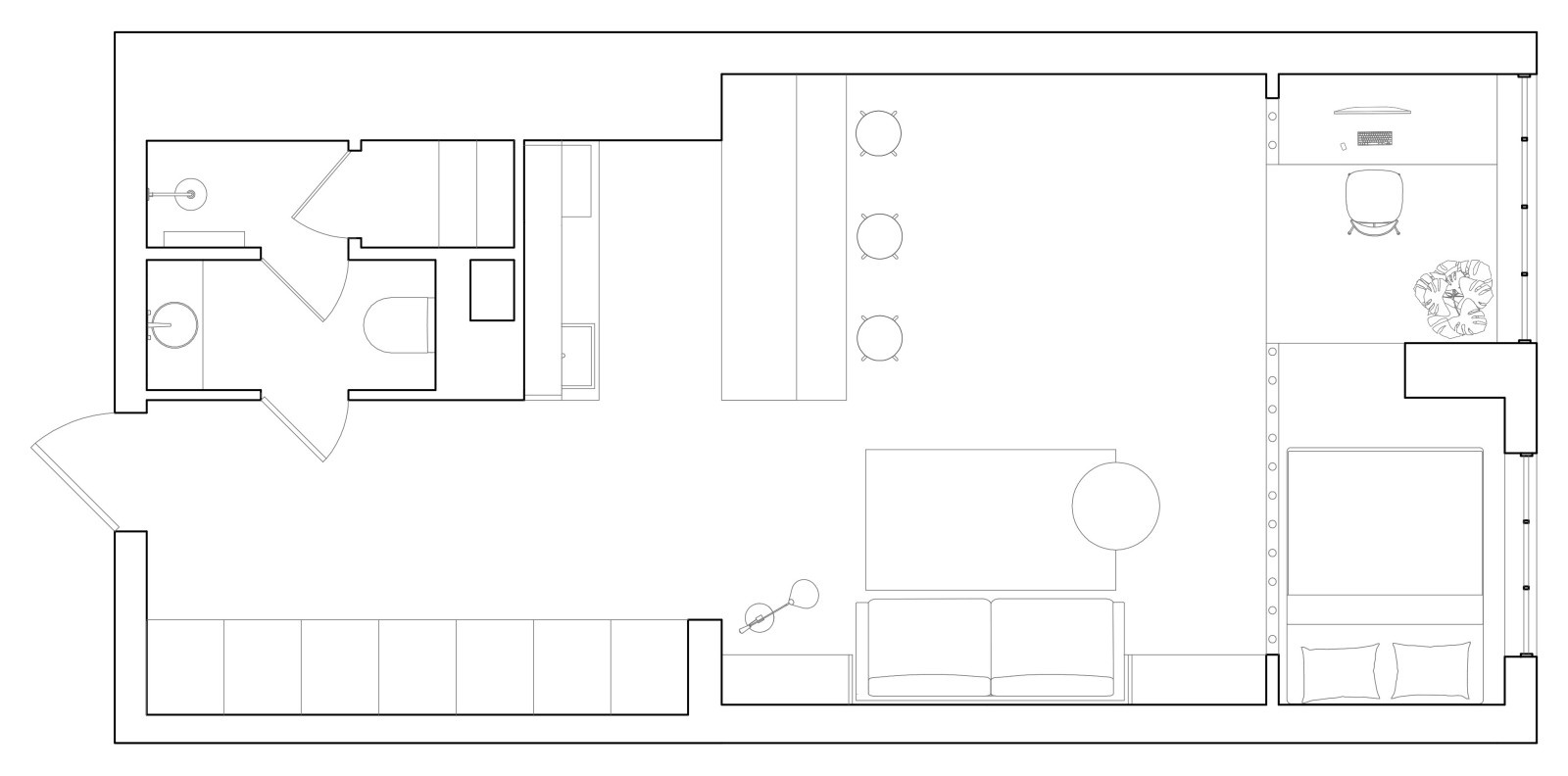
Основное пространство квартиры мы разделили на две части: зону гостиной объединили с кухней, а спальню и рабочее место поставили на подиум из фанеры вдоль окон. При этом пространство квартиры ощущается единым. . Для отделки и мебели мы выбирали натуральные материалы: дерево, микроцемент, натуральную краску. Потолок оставили бетонным, с неоднородной структурой, которую интересно рассматривать. . Зону готовки не видно из гостиной, ее закрывает высокий барный стол посередине комнаты. От спальни кухня-гостиная отделена легкой перегородкой, которая пропускает свет. Её верхняя часть состоит из ряда светодиодных трубок, которые заказчик изготовил сам. Он запрограммировал их таким образом, что может управлять режимом подсветки с компьютера и создавать разные световые эффекты. . Шкафы на колесиках по обеим сторонам дивана при совмещении выполняют функцию дополнительного рабочего стола. .
10 фотографий










