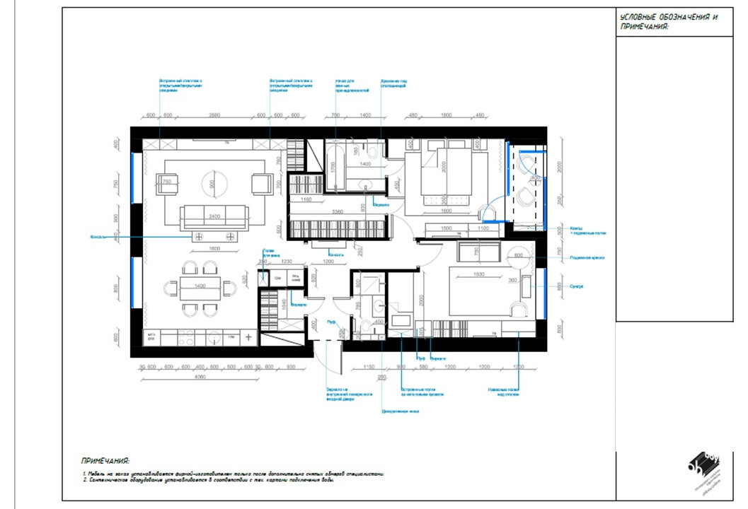
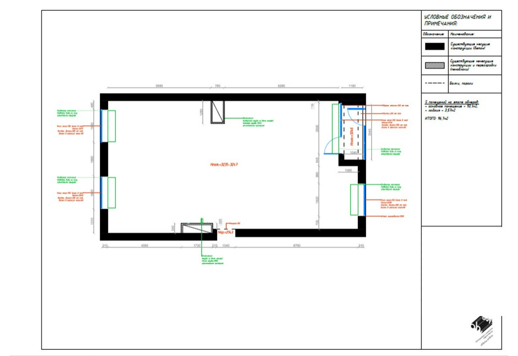
Профиль пользователяКвартира 95 кв.м. в жк Зиларт, МоскваГод реализации: 2020г. Москва, улица Архитектора Щусева, Южный административный округ19 фотографийПоделиться проектомПлан расстановки мебелиСохранитьПоделитьсяОбмерный планСохранитьПоделитьсяПрихожаяСохранитьПоделитьсяПостирочнаяСохранитьПоделитьсяСпальняСохранитьПоделитьсяСпальняСохранитьПоделитьсяВаннаяСохранитьПоделитьсяВаннаяСохранитьПоделитьсяВаннаяСохранитьПоделитьсяКухняСохранитьПоделитьсяДетскаяСохранитьПоделитьсяДетскаяСохранитьПоделитьсяДетскаяСохранитьПоделитьсяДетскаяСохранитьПоделитьсяГостинаяСохранитьПоделитьсяГостинаяСохранитьПоделитьсяСанузелСохранитьПоделитьсяГардеробнаяСохранитьПоделитьсяГардеробнаяСохранитьПоделиться