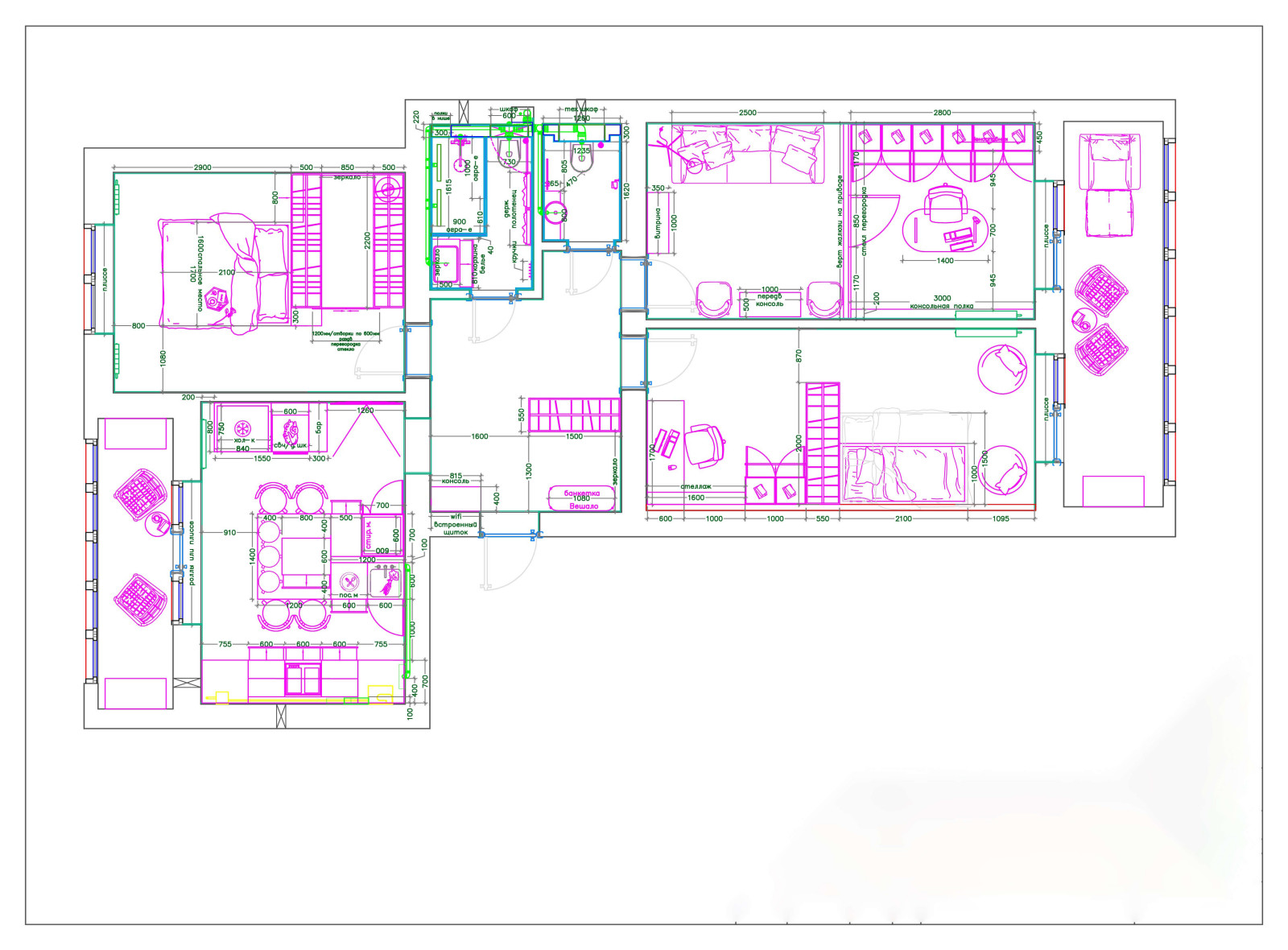
Квартира 93 кв.м. г. Калининград Гостиная-Кабинет
Задача дизайна интерьера: Объединить гостиную и кабинет в одном пространстве, где заказчик работает, преподаёт шахматы и отдыхает. Ключевые решения дизайна интерьера и их польза: 1. Зонирование стеклянной перегородкой с жалюзи – Польза: сохраняет ощущение света и простора, но при необходимости создаёт приватную зону для работы или занятий, не мешая другим. 2. Центральный рабочий стол на колёсах – Польза: можно легко передвинуть для совместных уроков шахмат или убрать, освободив пространство. 3. Индивидуальный акцент — шахматы – Витрина для наград, трафарет с фигурами на стене. – Польза: дизайн интерьера отражает увлечение хозяина, создаёт мотивирующую и вдохновляющую атмосферу. 4. Функциональное хранение и освещение – Большой стеллаж для книг, длинная узкая полка для плакатов. – Комбинация трековых, встроенных и подвесных светильников. – Польза: всё необходимое для работы и творчества под рукой, а многоуровневое освещение позволяет менять настроение и акценты. 5. Практичные материалы – Кварцвинил на полу, декоративная штукатурка на стенах, керамогранит на откосах, затемняющие плиссе на окнах. – Польза: интерьер выглядит стильно, при этом материалы износостойкие и простые в уходе. Итог: Дизайн интерьера помог создать многофункциональное пространство, где гармонично сочетаются работа, хобби и отдых. Каждый элемент приносит пользу: от мобильной мебели до продуманного освещения, делая жизнь заказчика удобнее и комфортнее.
6 фотографий







