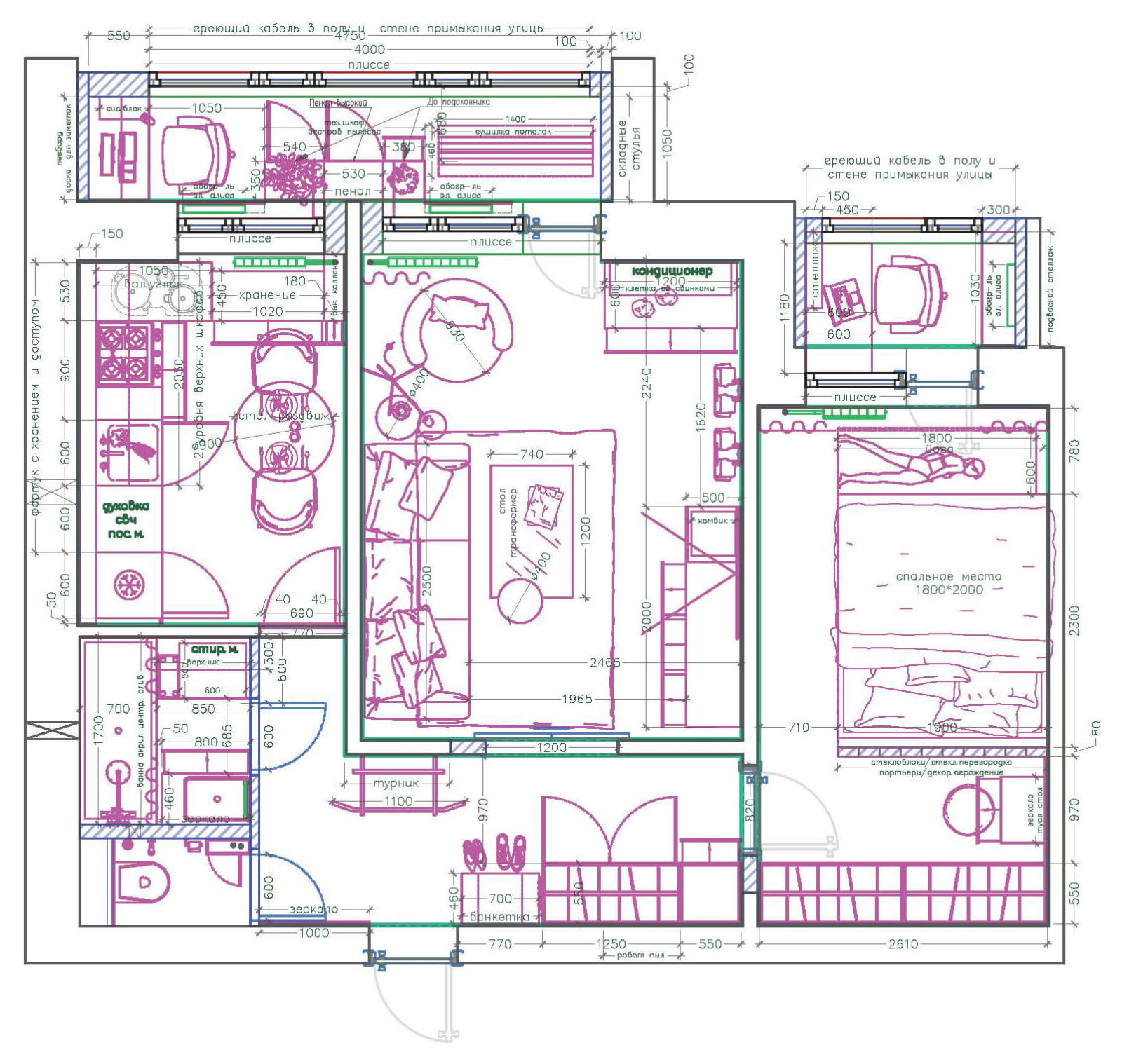
Квартира 60 кв.м. г. Ставрополь Кухня
Задача дизайна интерьера: Создать компактную, но вместительную и удобную кухню для семьи IT- специалистов. Ключевые решения дизайна интерьера и их польза: 1. Безопасность и визуальная лёгкость – Вместо открытого проёма установлена стеклянная дверь. – Польза: соответствует нормам для газовой плиты, сохраняет визуальную связь с прихожей и пропускает свет, делая пространство воздушнее. 2. Умная планировка и скрытые коммуникации – Кухня размещена по периметру, а все трубы и стояки аккуратно спрятаны в специальном коробе. – Польза: максимум полезной площади, технические узлы не нарушают эстетику дизайна интерьера. 3. Эргономичное хранение и встроенная техника – Использовано пространство под окном (с учётом радиатора), встроены холодильник и вся необходимая техника. – Польза: всё необходимое под рукой, кухня выглядит аккуратно и целостно. 4. Многоуровневое освещение и личные акценты – Трековые светильники, подсветка рабочей зоны и настенный светильник. – Картины родственника в технике масла добавлены в декор. – Польза: гибкие световые сценарии и уникальный, душевный характер интерьера. 5. Функциональные детали и натуральная палитра – Раскладной стол из массива дерева и раздвижной топ на столешнице. – Цветовая гамма: нейтральные тона с акцентами зелёного и натурального дерева. – Польза: экономия пространства, удобство в использовании и тёплая, уютная атмосфера. Итог: Дизайн интерьера кухни успешно сочетает безопасность, максимальную функциональность и личный характер. Каждое решение приносит пользу: от грамотной планировки, освобождающей пространство, до деталей, создающих комфорт и уют для семьи.
6 фотографий






