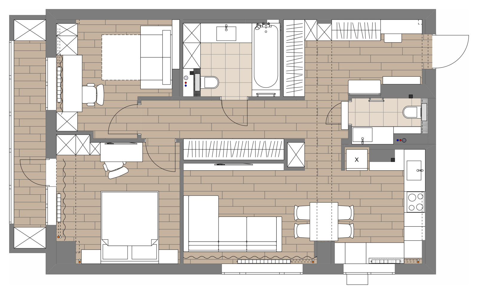
Квартира 73 кв.м. Рублевское шоссе
Дизайн проект выполнен в октябре 2020 , Москва, Стиль заказчик не определял, была задача вписаться в бюджет и несколько референсов. . Мы за смешение стилей. . . УКБ - Уют, комфорт, бюджет жилого пространства для нас главнее, чем привязка к стилю. . . Квартира 73 кв.м. в жилом каркасно-панельном доме серии куб представляла собой планировку с узким коридором, маленькими санузлами и кухней. . . Для современной молодой семьи требования были: удобная прихожая, расширение коридора, удобные системы хранения, организация кухни-гостиной, увеличение санузлов, небольшая спальня родителей с рабочим местом и небольшая комната-кабинет под будущую детскую. . . Частичный демонтаж стен позволил расширить коридор, организовать системы хранения в коридоре, в прихожей, а также в спальнях. Также кухня-гостиная объединены в общее пространство, где поместились: ТВ зона и диван, столовая группа и зона приготовления пищи. Все несущие конструкции: балки и колоны были задекорированы мебелью. Разные сценарии света и легкое светлое цветовое решение по стенам и мебели - позволили визуально расширить и увеличить небольшие площади помещений. Лоджия не утеплялась, осталась для хоз.нужд и хранения. .
59 фотографий




























































