logo
Квартира 73 кв.м. Рублевское шоссе

Другие фотографии в проекте Квартира 73 кв.м. Рублевское шоссе

Вопросы к фото 0

Задайте вопрос

Вам ответят эксперты. Пришлем уведомление, когда вам ответят

Контемпорари, Москва

nicehomestudio

Nice home studio

Дизайнеры интерьера

Смотреть профиль

20

отзывов

4.95

Рейтинг

Квартира 73 кв.м. Рублевское шоссе

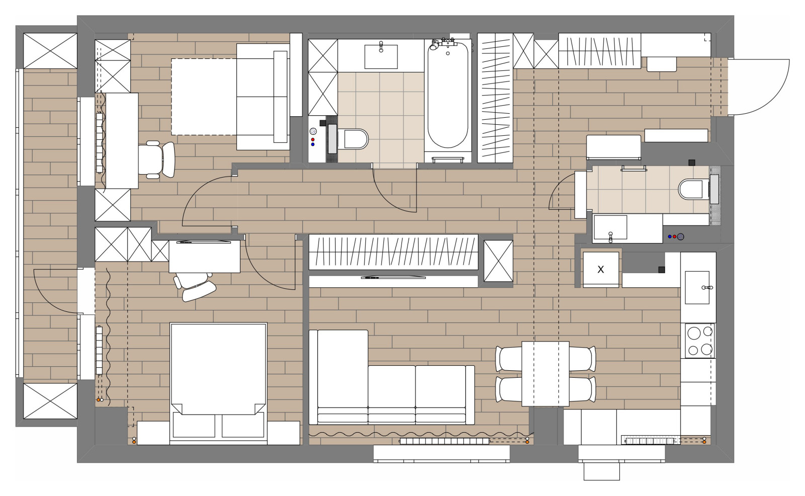
Дизайн проект выполнен в октябре 2020 , Москва, Стиль заказчик не определял, была задача вписаться в бюджет и несколько референсов. . Мы за смешение стилей. . . УКБ - Уют, комфорт, бюджет жилого пространства для нас главнее, чем привязка к стилю. . . Квартира 73 кв.м. в жилом каркасно-панельном доме серии куб представляла собой планировку с узким коридором, маленькими санузлами и кухней. . . Для современной молодой семьи требования были: удобная прихожая, расширение коридора, удобные системы хранения, организация кухни-гостиной, увеличение санузлов, небольшая спальня родителей с рабочим местом и небольшая комната-кабинет под будущую детскую. . . Частичный демонтаж стен позволил расширить коридор, организовать системы хранения в коридоре, в прихожей, а также в спальнях. Также кухня-гостиная объединены в общее пространство, где поместились: ТВ зона и диван, столовая группа и зона приготовления пищи. Все несущие конструкции: балки и колоны были задекорированы мебелью. Разные сценарии света и легкое светлое цветовое решение по стенам и мебели - позволили визуально расширить и увеличить небольшие площади помещений. Лоджия не утеплялась, осталась для хоз.нужд и хранения. .

Вопросы к фото 0