Проект для нашего строителя
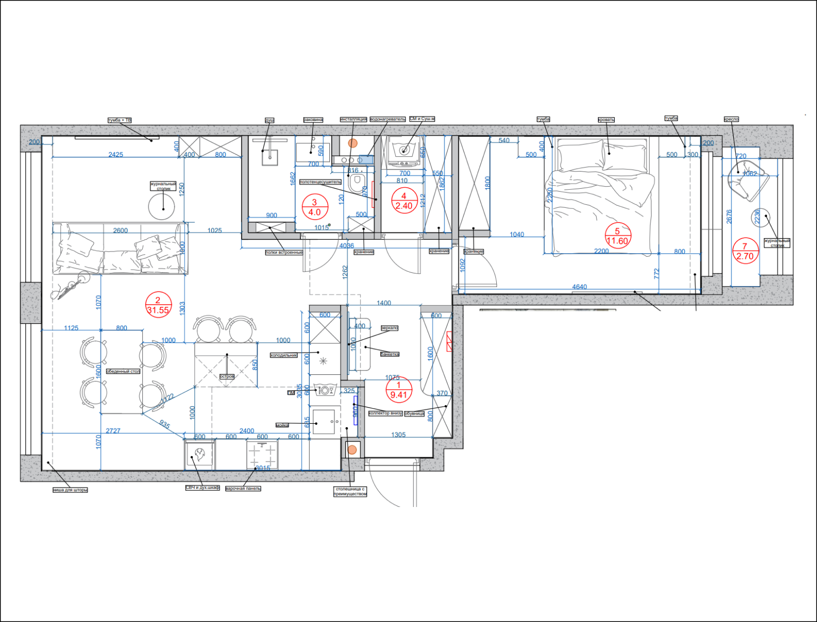
Интерьер уютной квартиры 64 кв.м. в Москве, разработанный нашей студией «Уютная квартира» под руководством дизайнера Натальи Преображенской, — образец современного минимализма с нотами неоклассики. Подобная эстетика близка европейским мастерам — Vincent Van Duysen, Kelly Hoppen и Norm Architects. Тёплый монохром песочных, сливочных и древесных оттенков. Мягкая пластика форм и линий, приглушённое освещение и тактильные материалы создают пространство, которое гораздо больше, чем заявленные метры. Этот дизайн интерьера демонстрирует, как современный подход, внимание к фактуре и работа с пропорциями могут превратить малогабаритную квартиру в утончённое, уютное и функциональное пространство.
Год реализации: 2025
Стиль: Чешский
г Москва, ул Озёрная
21 фотография





















