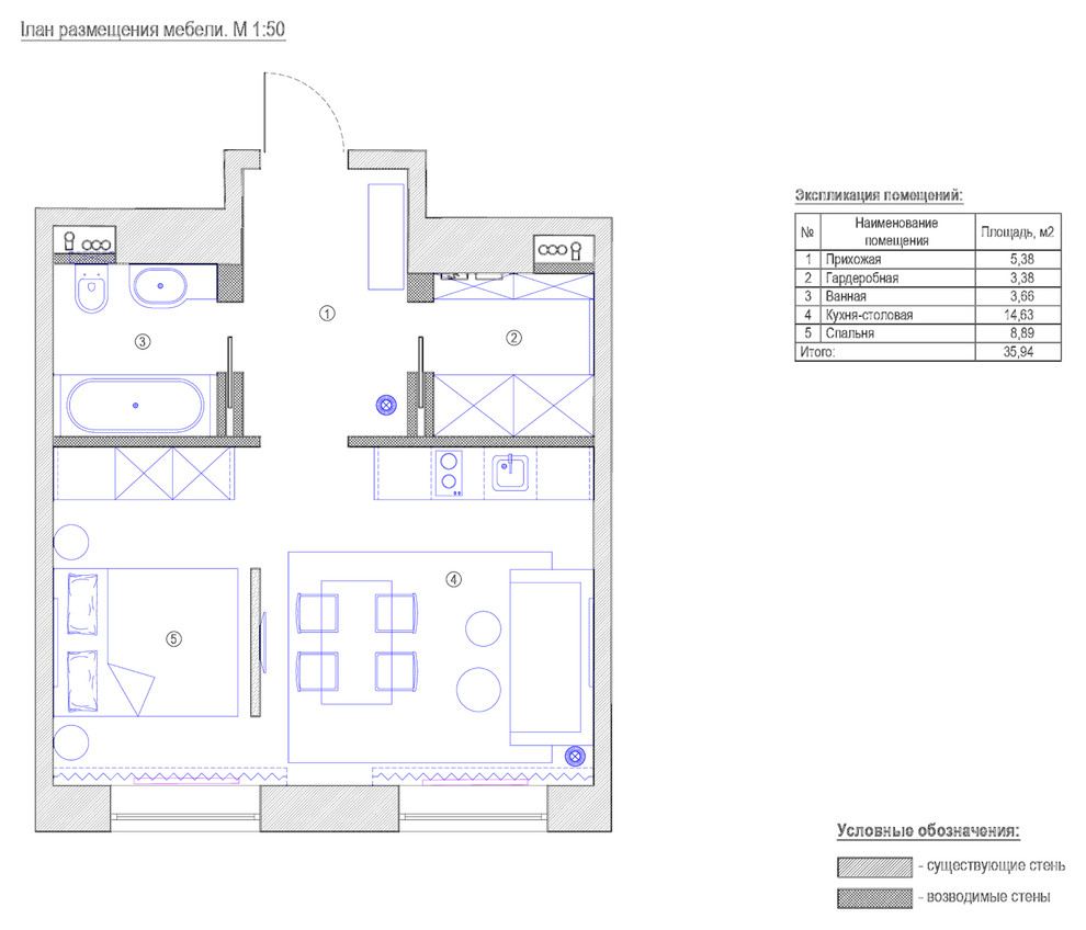
Квартира 36м в Юнион Парк
Квартира с панорамными окнами на 28 этаже в комплексе Юнион парк для молодой, успешной девушки. Густые тёмные краски разбавлены розовым нежным оттенком.. Прямые, объемные, масштабные детали сочетаются с тонкими, изящными формами мебели, декоративных светильников и аксессуаров.
Год реализации: 2019
г. Москва, бульвар Генерала КарбышеваСеверо-Западный административный округ
25 фотографий


























