logo
Войти
Профиль пользователя

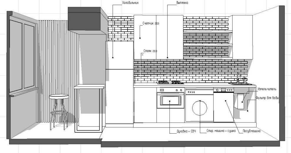
Кухня, в которой поместилось всё

Год реализации: 2022
photo

2 фотографии

Кухня, в которой поместилось всё
Кухня, в которой поместилось всё
Кухня, в которой поместилось всё
Кухня, в которой поместилось всё
Фоновое изображение профиля Алёна Маркина
Фото профиля Алёна Маркина

Алёна МаркинаАлёна Маркина

0

0 отзывов

Дизайнеры интерьера

Контакты

г. Санкт-Петербург, Планерная 63

Все проекты

ЖК «ЦДС Черная речка»

Детская комната с обоями на заказ

Маленькая кухня с фасадами AGT

Спальня для молодой пары

Санузел в Хрущевке

Кухня с барной стойкой

Квартира на Проспекте Ветеранов

Смотреть все
Флатика
О насМы в прессеFAQКонтактыМатериалыКарта сайта

«Флатика» в соцсетях:

ПинтерестМаксВкДзенTelegramTelegram Pro
Pro
Instagram

Продукт компании Meta, признанной экстремистской организацией, деятельность которой запрещена в РФ

Пользовательское соглашениеПолитика в отношении обработки персональных данных

© 2026 Flatica

ФотоЭкспертыСтатьи