
Дизайнеры интерьера
0
Кухня, в которой поместилось всё
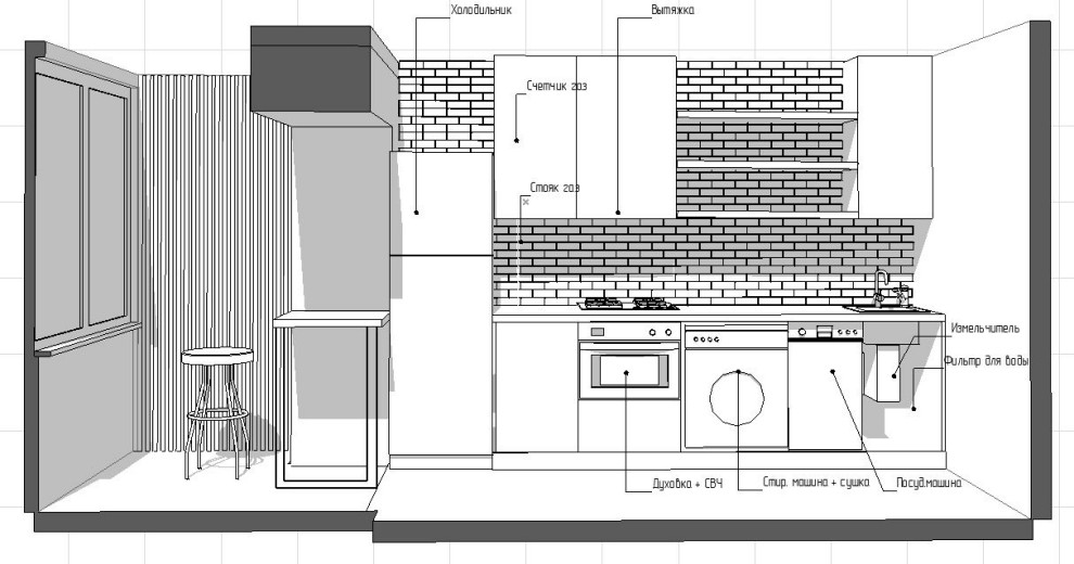
развертка кухни с подписями
Другие фотографии в проекте
Вопросы к фото 0
Задайте вопрос
Вам ответят эксперты. Пришлем уведомление, когда вам ответят

Дизайнеры интерьера
0
развертка кухни с подписями
Другие фотографии в проекте
Вам ответят эксперты. Пришлем уведомление, когда вам ответят