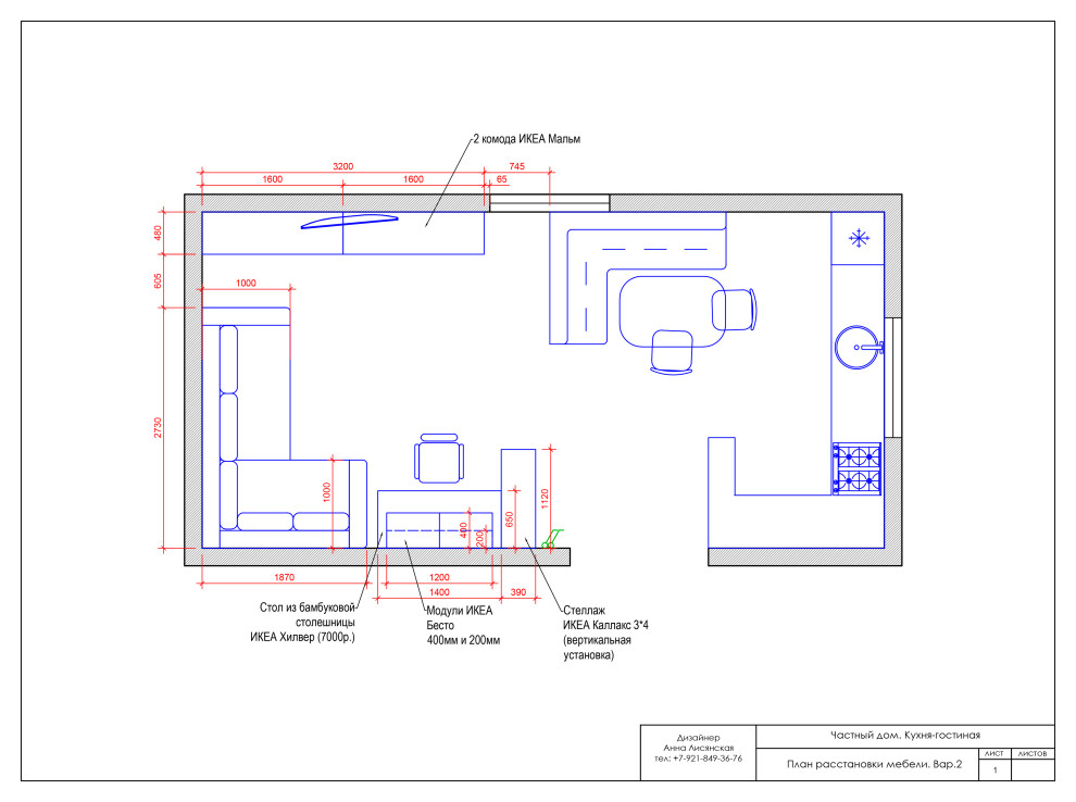
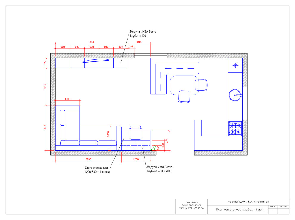
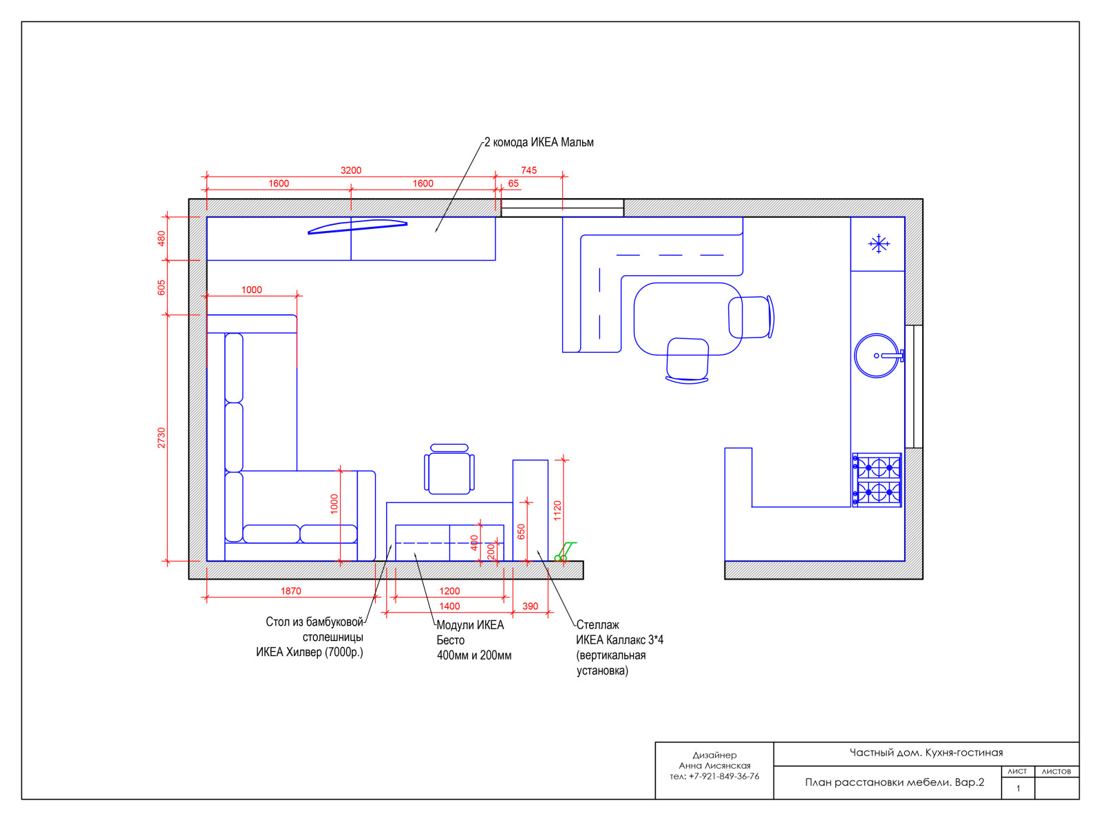
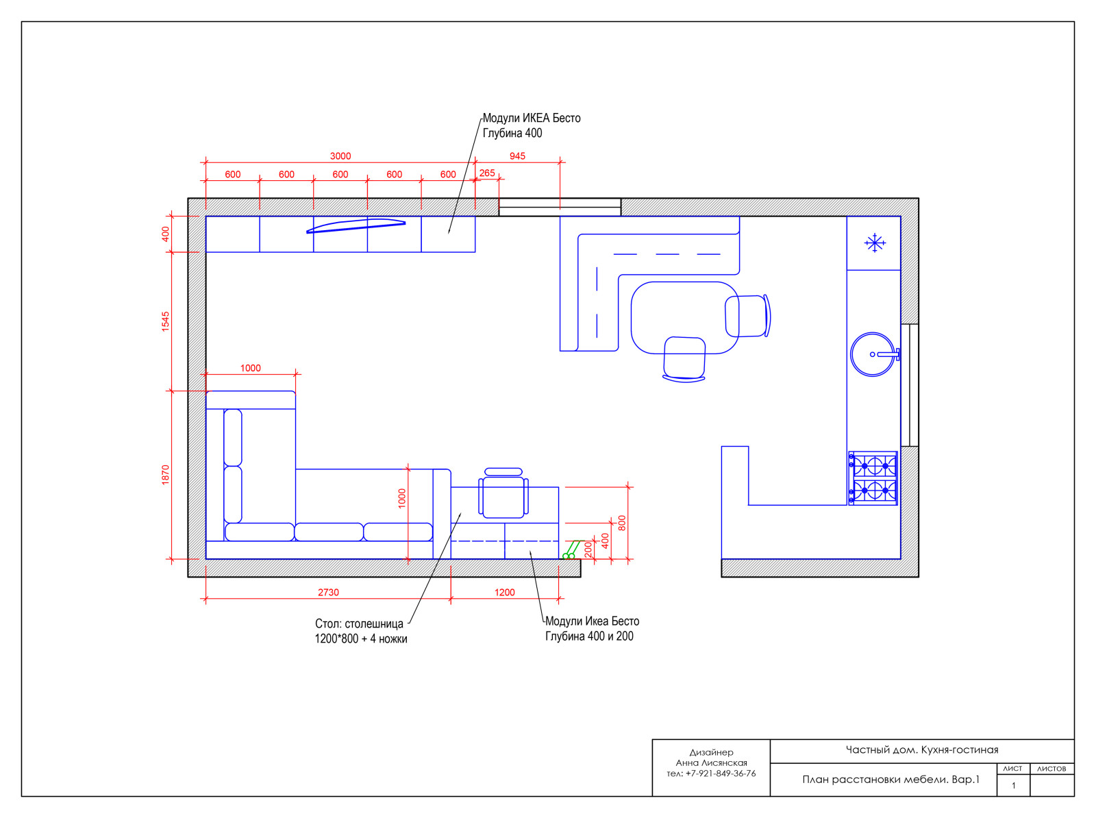
Кухня-гостиная в частном доме. Ленобласть
Дружеская работа. Большое помещение кухни-гостиной. Кухня установлена и ничего там не поменяется. А вот гостиная часть нуждалась в преображении. Задача подобрать и расставить мебель и организовать рабочее место для HandMade мастерицы - большой стол и шкафчики для "всяких штучек". У заказчицы есть черепашник и много домашних растений, что также нужно учесть в проекте. Диван уже быв выбран. . Эскизы выполнены в виде 2Д набросков. . Проект реализован.
Год реализации: 2021
Стоимость проектирования: 34 999 ₽
г. Санкт-Петербург
5 фотографий






