Кухня-гостиная в частном доме
Анна Лисянская

Анна Лисянская

Дизайнеры интерьера

0

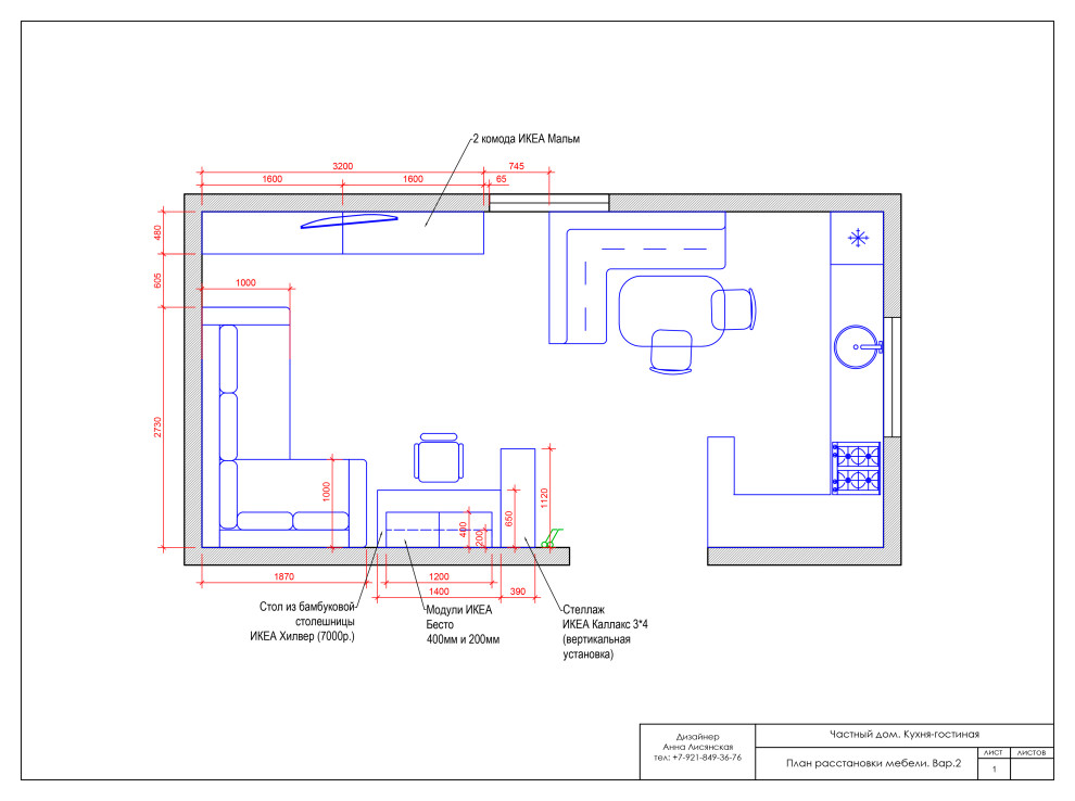
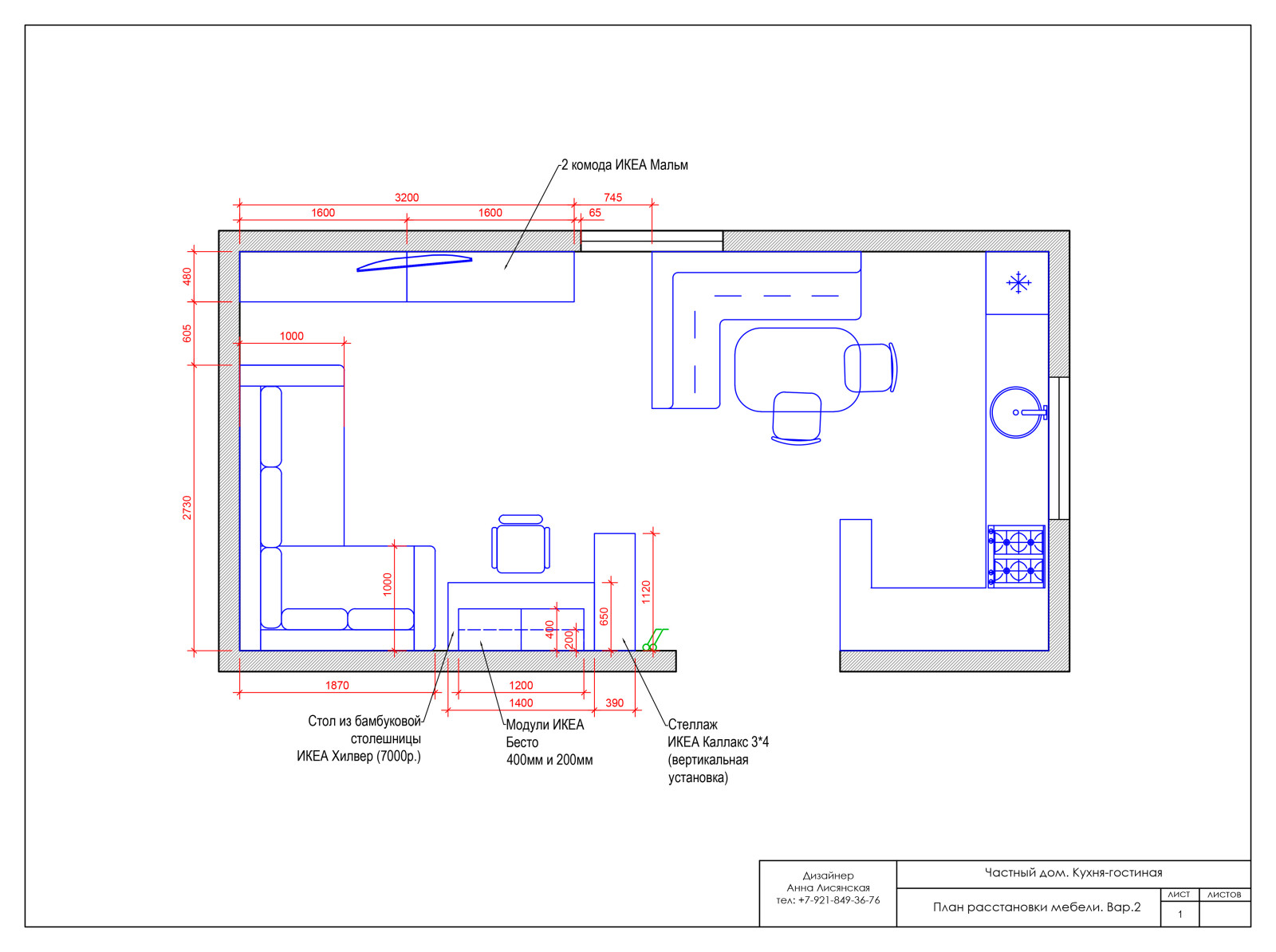
Кухня-гостиная в частном доме. Ленобласть

Дружеская работа. Большое помещение кухни-гостиной. Кухня установлена и ничего там не поменяется. А вот гостиная часть нуждалась в преображении. Задача подобрать и расставить мебель и организовать рабочее место для HandMade мастерицы - большой стол и шкафчики для "всяких штучек". У заказчицы есть черепашник и много домашних растений, что также нужно учесть в проекте. Диван уже быв выбран. . Эскизы выполнены в виде 2Д набросков. . Проект реализован.

Другие фотографии в проекте

Кухня-гостиная в частном домеКухня-гостиная в частном домеКухня-гостиная в частном домеКухня-гостиная в частном доме

Вопросы к фото 0

Задайте вопрос

Вам ответят эксперты. Пришлем уведомление, когда вам ответят