Крылатские холмы
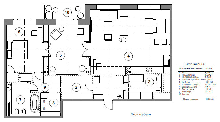
Это трехкомнатная квартира площадью 118 м2 в новом монолитно-кирпичном доме на западе Москвы для супружеской пары 50-лет. Они искренне любят жизнь, друг друга и классическую музыку. Интересуются искусством, любят оперу. Поклонники классического стиля в интерьере, ценят хорошее качество и подлинность предметов. У квартиры линейная планировка: все 4 окна выходят на юг. Требовалось спроектировать это пространство для комфортной жизни двух человек. Заказчики хотели просторную гостиную, совмещенную со столовой и кухней, чтобы иметь возможность все время быть рядом, вместе. Это очень дружная семья. Также требовался кабинет, спальня, 2 санузла, как можно больше мест для хранения и место для размещения фортепиано (оба супруга любят музицировать). Я предложила анфиладную планировку с круговым обходом, чтобы проявить объем квартиры. Поскольку заказчики планировали жить в этой квартире вдвоем (их любимая дочь уже выросла и вышла замуж), они легко согласились на этот вариант.
23 фотографии























