КРАСНЫЙ ДОМ
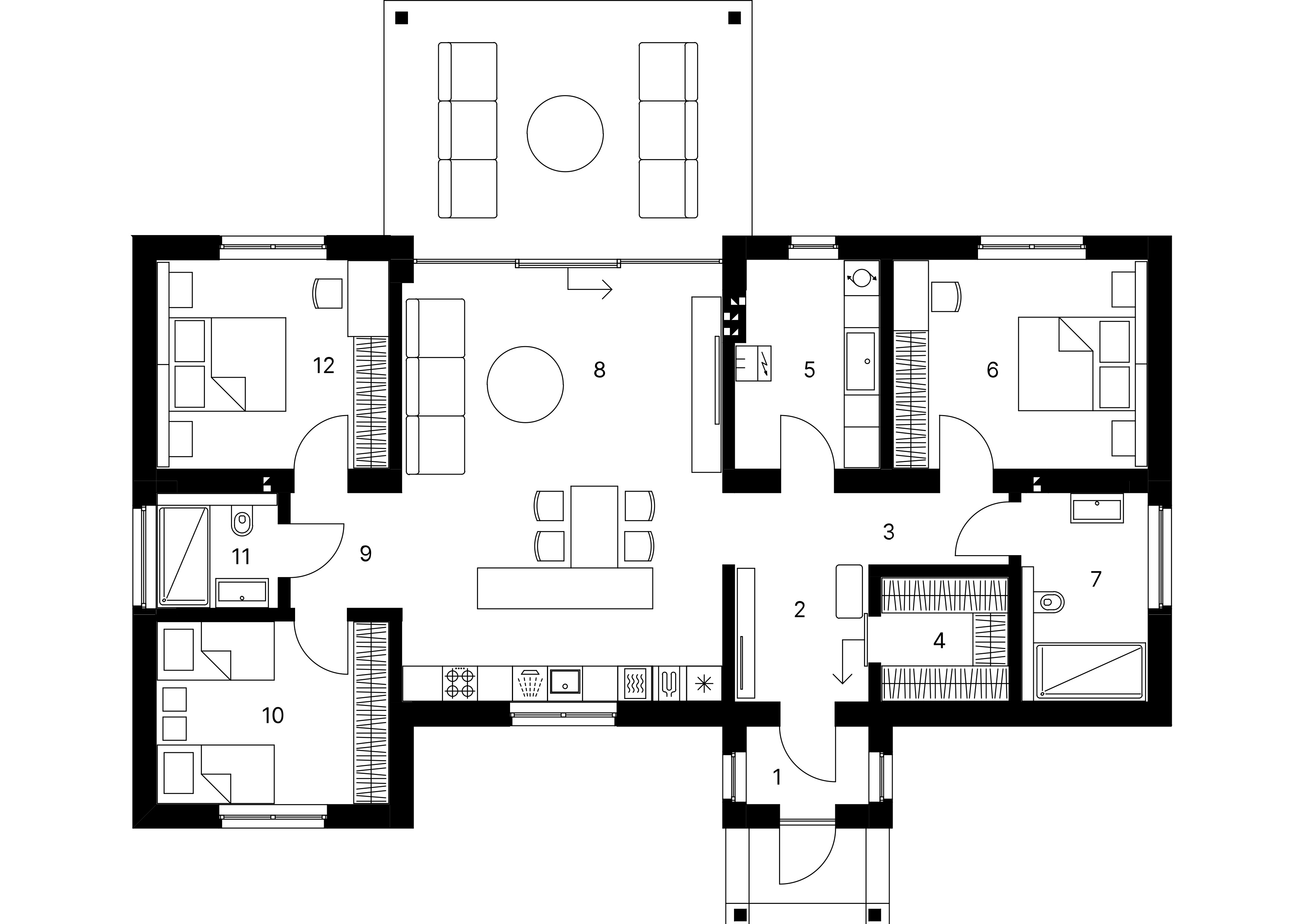
Площадь дома 125,5 кв.м. Дом для зрелой женщины, куда будут приезжать погостить ее взрослые дети. Планировка дома выстроена по классической схеме: в центре – кухня-гостиная, а к ней примыкают спальни и технические помещения. Выход террасы – с кухни-гостиной во внутренний двор. Туда же направлены и основные виды из других комнат. Перед домом – парковка с перголой на две машины, одна из которых предназначена для гостей. Парковка устроена так, чтобы, выходя из машины, сразу попадали на крыльцо дома. Объединяющим элементом парковки-перголы и крыльца служат резные зигзагообразные колонны в традиционной технике. Дом создан по образу русской сказки в современной стилизации. Материалы: деревянный планкен с фрезерованным орнаментом по фасаду, цоколь и крыльцо – керамогранит, кровля – фальц в цвет фасада. Отдельно стоит сказать об основных элементах русского узора. Орнамент по фасаду – Древо жизни (Мировое Дерево), Круг на фронтонах кровли – коловрат (символ Солнца). Чтобы подчеркнуть русский стиль дома озеленение сделано соответствующим образом: злаковые травы, белые луговые цветы, калина, яблоня и прочее. Парковочное место и основная дорожка – бетонные плиты с зигзагом по краю. Вдоль отмостки – белая галька.
12 фотографий












