logo
Войти
Профиль пользователя

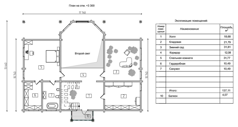
Коттедж "Нильс"

Год реализации: 2017
photo

4 фотографии

Коттедж "Нильс"
Коттедж "Нильс"
Коттедж "Нильс"
Коттедж "Нильс"
Коттедж "Нильс"
Коттедж "Нильс"
Коттедж "Нильс"
Коттедж "Нильс"
Фоновое изображение профиля BukovelDom
Фото профиля BukovelDom

BukovelDomBukovelDom

0

0 отзывов

Проектирование и строительство

Контакты

г. ул.50-летия Белгородской области, 12а

Все проекты

Особняк "Хольн"

Баня "Теро"

Смотреть все
Флатика
О насМы в прессеFAQКонтактыМатериалы

«Флатика» в соцсетях:

ПинтерестМаксВкДзенTelegramTelegram Pro
Pro
Instagram

Продукт компании Meta, признанной экстремистской организацией, деятельность которой запрещена в РФ

Пользовательское соглашениеПолитика в отношении обработки персональных данныхКарта сайта

© 2026 Flatica

ФотоЭкспертыСтатьи