logo
Коттедж "Нильс"

Другие фотографии в проекте Коттедж "Нильс"

Коттедж "Нильс"
Коттедж "Нильс"
Коттедж "Нильс"

Вопросы к фото 0

Задайте вопрос

Вам ответят эксперты. Пришлем уведомление, когда вам ответят

Архитектура, Скандинавский, Шале, архитектурное решение, буковельдом, дом, клееный брус, коттедж, люкс, особняк, под ключ, премиум, проектирование, скандинавский, строительство, шик

office9051

BukovelDom

Проектирование и строительство

Смотреть профиль

0

отзывов

0

Рейтинг

Коттедж "Нильс"

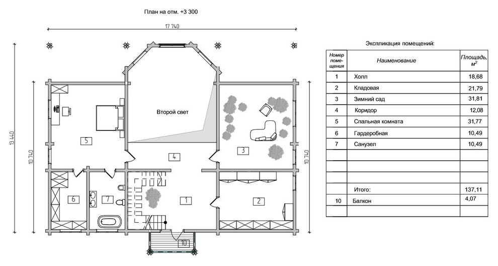
Общая площадь - 348.66 м2, сечение стенового бруса - 200х180(h) мм. . Авторство проекта - архитектурное бюро "BukovelDom"

Вопросы к фото 0