Концепция жилого комплекса малоэтажной застройки
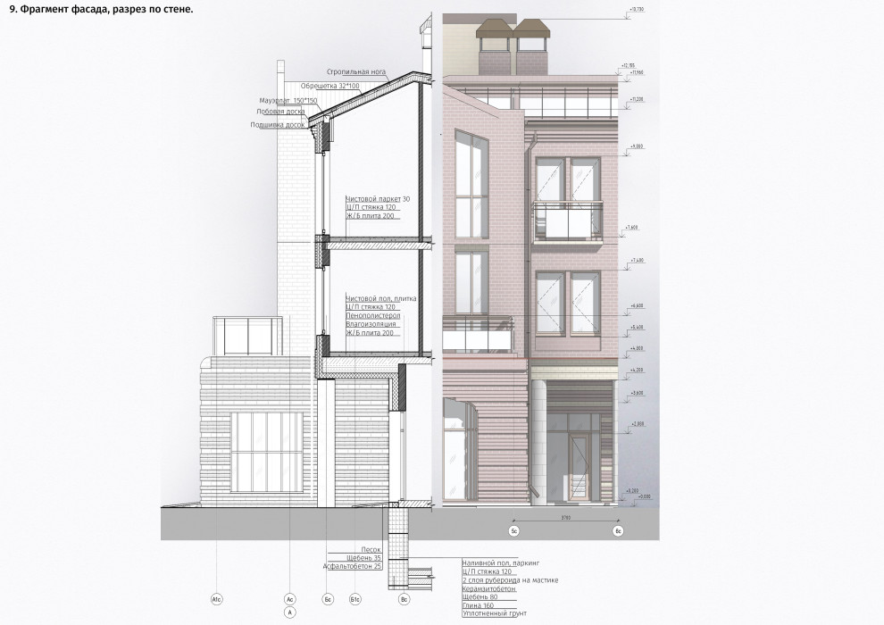
Из дипломного проекта СПбГАСУ. Участок выходит на магистральную улицу Цитадельское шоссе и Цитадельскую дорогу. . ⠀ . На участке расположены 3 многосекционных и 3 точечных дома, этажностью от 3 до 5 этажей. . На шоссе комплекс выходит протяженными фасадами, ограждая приватное пространство двора от нежелательного шума и загрязнений. Внутренняя часть территории решена точечной застройкой, обеспечив визуальную проницаемость. . Инсоляция двора обеспечена понижением этажности. . ⠀ . Двор поднят на полтора метра, что позволило сделать полузаглубленный паркинг, чтобы обойти проблему грунтовых вод и упростить земельные работы по участку. . ⠀ . На главном фасаде задания ритм выступающих фронтонов и массивная колоннада как основной прием пластики фасада. . Скругленные витринные проемы во фронтонах здания выступают приглашением в коммерческую функцию. . . Квартиры, расположенные во фронтонах на верхних этажах, реализуются со вторым светом, а на втором этаже используют выступающую часть как летнюю открытую террасу. . . EN . The yard is raised by one and a half meters, which made it possible to make a semi-buried parking lot in order to bypass the problem of groundwater and simplify land work on the site. . ⠀ . The parking lot has free areas where it is possible to plant trees and organize social and cultural areas using landscape techniques, small architectural forms and landscaping. . ⠀ . The northern part of the courtyard is not occupied by a parking lot, where a children's playground is located. . ⠀ . On the main faсade of the task, the rhythm of protruding pediments and a massive colonnade as the main method of faсade plastics. . Rounded display openings in the gables of the building act as an invitation to the commercial function. . The ends of the building have smooth roundings with a reference to fortifications. . ⠀ . The apartments located in the pediments on the upper floors are realized with a second light, and on the second floor they use the protruding part as a summer open terrace.
9 фотографий










