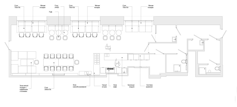
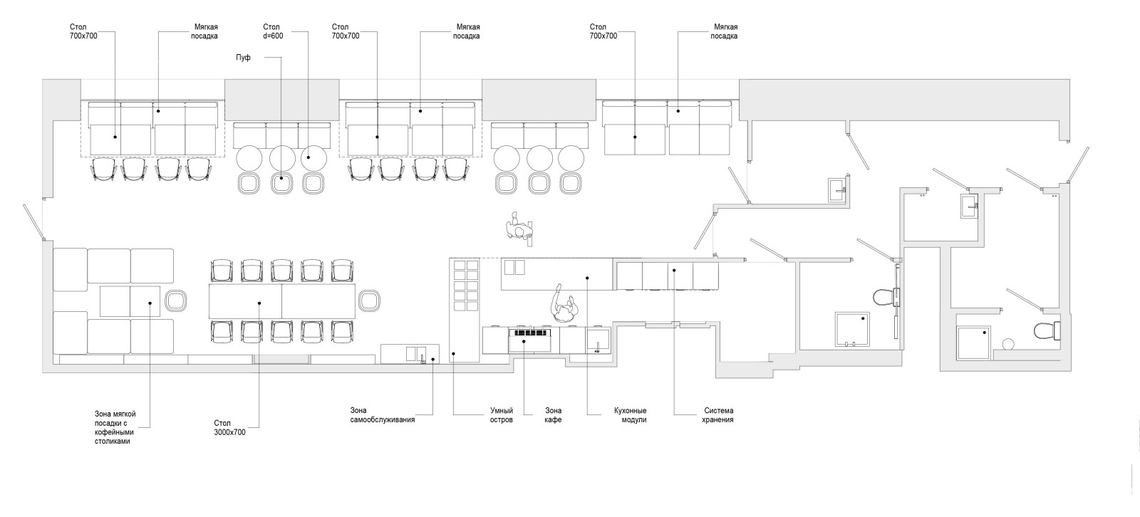
Профиль пользователяКафе ГлитчАвторы проекта: Илья Ерошевич, Светлана ПоздееваГод реализации: 2025г. Москва13 фотографийПоделиться проектомКафе ГлитчСохранитьПоделитьсяКафе ГлитчСохранитьПоделитьсяКафе ГлитчСохранитьПоделитьсяКафе ГлитчСохранитьПоделитьсяКафе ГлитчСохранитьПоделитьсяКафе ГлитчСохранитьПоделитьсяКафе ГлитчСохранитьПоделитьсяКафе ГлитчСохранитьПоделитьсяКафе ГлитчСохранитьПоделитьсяКафе ГлитчСохранитьПоделитьсяКафе ГлитчСохранитьПоделитьсяКафе ГлитчСохранитьПоделитьсяКафе ГлитчСохранитьПоделиться